2 Bedrooms Bungalow for sale in Abercorn Crescent, Hamilton, South Lanarkshire ML3 | £ 200,000

Overview

Price: £ 200,000
Contract type: For Sale
Type: Bungalow
County: South Lanarkshire
Town: Hamilton
Postcode: ML3
Address: Abercorn Crescent, Hamilton, South Lanarkshire ML3
Bathrooms: 0
Bedrooms: 2

Property Description

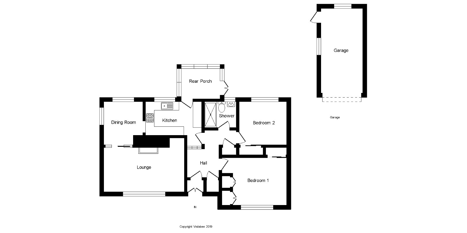
Set within admired Abercorn Crescent this detached bungalow offers genuine on the level accommodation though the sizeable loft and wonderful garden grounds offer fabulous potential to extend subject to any necessary planning regulations. This well cared for property does require a degree of internal upgrading and decoration with the pleasing arrangement including: Vestibule, broad hall with storage, lounge, separate dual aspect dining room, kitchen, rear porch, two bedrooms with fitted storage and shower room. The impressive garden grounds offer a high degree of privacy and incorporate an expansive driveway and detached garage. This locally admired address ensures easy access to a wide variety of local facilities including the adjacent shopping centre, train station and quality Silvertonhill primary and secondary schooling. Sure to be of interest to a selection of buyer types the selling agents would advise early viewing to avoid disappointment.

Vest3'8" x 2'8" (1.12m x 0.81m).

Hall7'6" x 8'2" (2.29m x 2.5m).

Lounge18'4" x 12'5" (5.59m x 3.78m).

Dining Room8'10" x 9'10" (2.7m x 3m).

Kitchen12'9" x 10'2" (3.89m x 3.1m).

Rear Porch 8'10" x 6'10" (2.7m x 2.08m).

Bedroom 1 14'9" x 10'9" (4.5m x 3.28m).

Bedroom 210'9" x 9'10" (3.28m x 3m).

Shower5'10" x 7'2" (1.78m x 2.18m).

Garage9'6" x 19'4" (2.9m x 5.9m).



Property Location

Property Marketed by Slater Hogg & Howison - Hamilton Sales



Phone:
Address: 43 Cadzow Street, Hamilton

Inquire about this property

By sending, you agree to Mylisting365's Terms of Use & Privacy Policy.

Similar Properties

Bungalow For Sale Hamilton
Bungalow For Sale ML3
Hamilton new homes for sale
ML3 new homes for sale
Flats for sale Hamilton
Flats To Rent Hamilton
Flats for sale ML3
Flats to Rent ML3
Hamilton estate agents
ML3 estate agents