2 Bedrooms Bungalow for sale in North Street, Nazeing, Waltham Abbey EN9 | £ 450,000

Overview

Price: £ 450,000
Contract type: For Sale
Type: Bungalow
County: Essex
Town: Waltham Abbey
Postcode: EN9
Address: North Street, Nazeing, Waltham Abbey EN9
Bathrooms: 1
Bedrooms: 2

Property Description

** detached bungalow - attractive 18' lounge- comprehensive heating system ** A detached 2 bedroom bungalow needing some modernisation, but with a heating system including a Worcester gas central heating boiler, thermodynamic solar panel and a Magic Heating Box system. Nazeing offers a parade of local shops, a junior school and Broxbourne main line station less than 2 miles away. Garage & large car port + own drive. Secluded garden. Chain free.

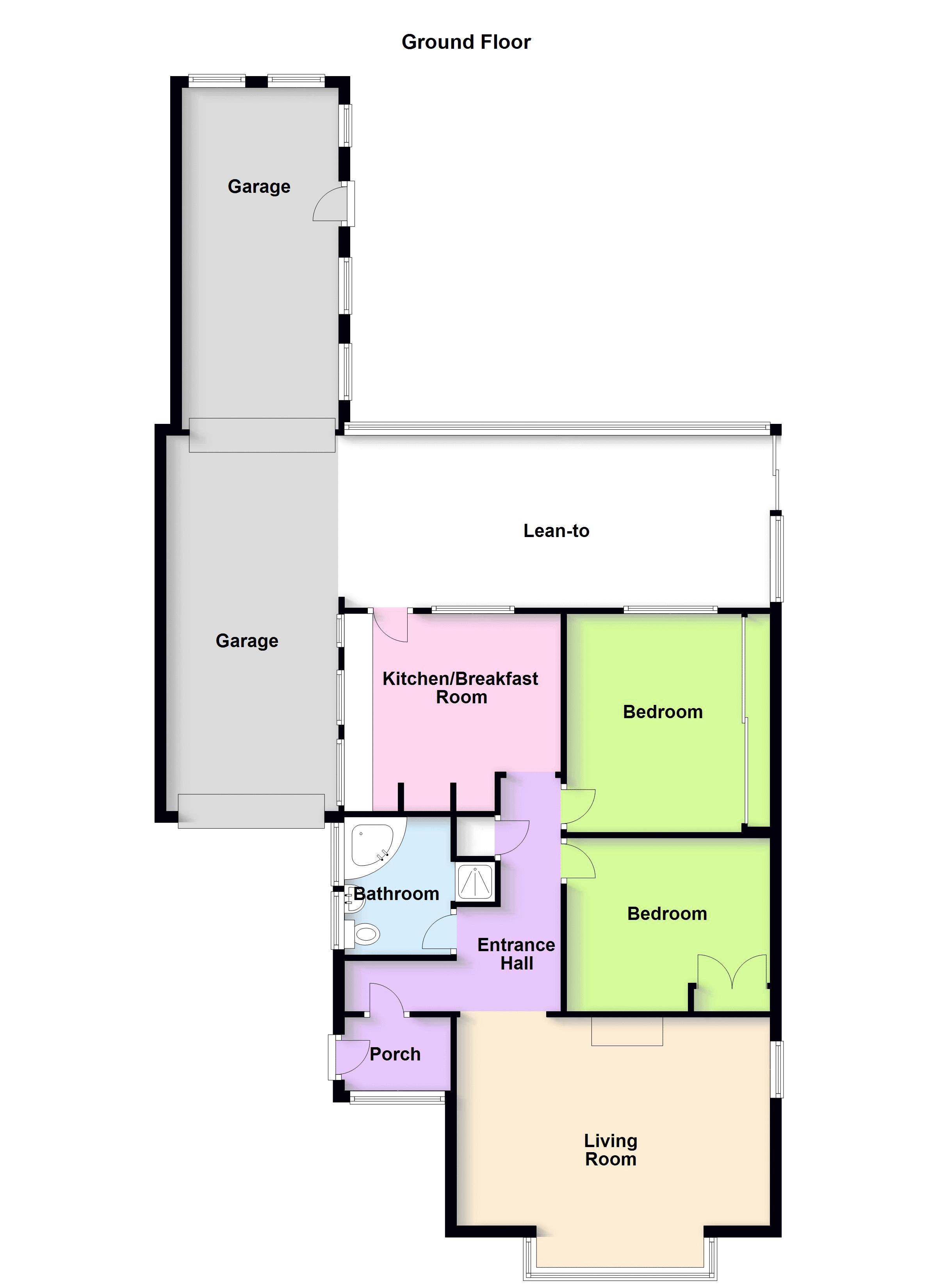
Entrance Porch (6' 0'' x 5' 0'' (1.83m x 1.52m))

Tiled floor.

Entrance Hall

Radiator. Airing cupboard with radiator. Pull down ladder to boarded loft with Worcester Bosch gas central heating boiler and hot water system including a 'magic box' to optimise the heating system. There is also a thermodynamic solar panel on the roof to supplement the system.

Lounge (18' 0'' x 14' 2'' (5.48m x 4.31m) into front bay)

Dual aspect. 2 radiators. Stone fireplace with gas fire. Worcester Bosch air to air heat pump outlet providing an all in one heating and cooling system.

Kitchen/Diner (12' 4'' x 11' 0'' (3.76m x 3.35m))

Base units, working surfaces, inset stainless steel sink. Gas cooker. Washing machine. Tumble drier. Radiator. Door to conservatory.

Conservatory (25' 0'' x 6' 3'' (7.61m x 1.90m))

Door to rear garden.

Bedroom 1 (12' 6'' x 9' 3'' (3.81m x 2.82m) measured up to wardrobes)

Radiator. Fitted wardrobes to one wall with radiator.

Bedroom 2 (11' 6'' x 10' 0'' (3.50m x 3.05m))

Radiator. Fitted wardrobes.

Bathroom (8' 6'' x 5' 8'' (2.59m x 1.73m))

Corner bath, tiled shower cubicle, pedestal wash basin, low suite toilet. Chrome ladder heated towel rail. Tiled walls.

Garage (19' 6'' x 8' 0'' (5.94m x 2.44m))

Light and power connected.

Large Car Port (23' 6'' x 9' 6'' (7.16m x 2.89m))

Up & over door. Water tap.
Own block paved drive providing off street parking for two cars. Air source external heat pump.

Rear Garden (40' 0'' x 40' 0'' (12.18m x 12.18m))

Mature trees and shrubs providing seclusion. Ornamental pond.


Property Location

Property Marketed by Paul Wallace



Phone:
Address: 70 High Street, Hoddesdon

Inquire about this property

By sending, you agree to Mylisting365's Terms of Use & Privacy Policy.

Similar Properties

Bungalow For Sale Waltham Abbey
Bungalow For Sale EN9
Waltham Abbey new homes for sale
EN9 new homes for sale
Flats for sale Waltham Abbey
Flats To Rent Waltham Abbey
Flats for sale EN9
Flats to Rent EN9
Waltham Abbey estate agents
EN9 estate agents