3 Bedrooms Detached house for sale in Beach Walk, Whitstable CT5 | £ 695,000

Overview

Price: £ 695,000
Contract type: For Sale
Type: Detached house
County: Kent
Town: Whitstable
Postcode: CT5
Address: Beach Walk, Whitstable CT5
Bathrooms: 1
Bedrooms: 3

Property Description

An attractive New England style house enviably positioned in Beach Walk, one of Whitstable's most coveted locations, a short stroll from the beach, charming town centre, Whitstable harbour and railway station (0.6 of a mile distant).

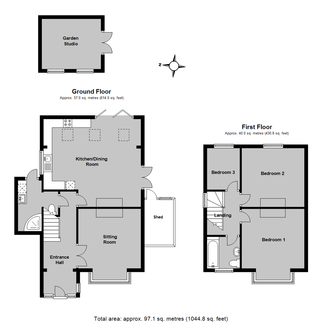
The bright, spacious and beautifully presented accommodation has been much improved by the current owners and is arranged on the ground floor to provide an entrance porch, entrance hall, sitting room, kitchen/dining room with wood burning stove and bi-folding doors opening to the garden, and a utility/shower room.
To the first floor there are three bedrooms (two doubles) and a family bathroom.

The courtyard garden has been designed for ease of maintenance and incorporates a large garden studio and a storage shed. A block paved driveway provides off road parking for a number of vehicles, which is a rare commodity in this highly desirable position. No onward chain.

Location

Beach Walk is a coveted beach front location a short stroll from the fashionable and charming town centre which boasts an array of delicatessens, restaurants and boutique shops. Just moments from the town centre you can meander through the town’s historic alleyways leading to Whitstable’s beautiful coastline and working harbour with fish market. Located between Whitstable and Tankerton is Whitstable Castle which is a popular attraction offering a wide range of social and cultural events along with its now celebrated ‘Regency’ style gardens. A short stroll up Tower Hill will take you to Tankerton slopes and the Castle Tea Gardens where you can enjoy stunning sea views over Whitstable Bay and the Isle of Sheppey. Mainline railway services are available at Whitstable station (0.5 of a mile distant), offering fast and frequent services to London (Victoria approximately 80mins) with high speed links to London St Pancras (approximately 73mins) and the A299 is also easily accessible linking with the A2/ M2 providing access to the channel ports and subsequent motorway network.

Accommodation

The accommodation and approximate measurements are:

• Entrance Hall

• Sitting Room (3.66m x 3.48m (12'0 x 11'5))

At maximum points

• Kitchen/Dining Room (5.66m x 5.11m (18'7 x 16'9))

At maximum points

• Landing

• Shower Room

• Bedroom 1 (3.66m x 3.45m (12'0 x 11'4))

At maximum points

• Bedroom 2 (3.66m x 3.43m (12'0 x 11'3))

At maximum points

• Bedroom 3 (2.42m x 1.90m (7'11" x 6'3"))

At maximum points

• Storage Shed

• Courtyard Garden


Property Location

Property Marketed by Christopher Hodgson



Phone:
Address: 95-97 Tankerton Road, Whitstable

Inquire about this property

By sending, you agree to Mylisting365's Terms of Use & Privacy Policy.

Similar Properties

Detached house For Sale Whitstable
Detached house For Sale CT5
Whitstable new homes for sale
CT5 new homes for sale
Flats for sale Whitstable
Flats To Rent Whitstable
Flats for sale CT5
Flats to Rent CT5
Whitstable estate agents
CT5 estate agents