5 Bedrooms Detached house for sale in Chandos Avenue, Oakleigh Park N20 | £ 1,350,000

Overview

Price: £ 1,350,000
Contract type: For Sale
Type: Detached house
County: London
Town: London
Postcode: N20
Address: Chandos Avenue, Oakleigh Park N20
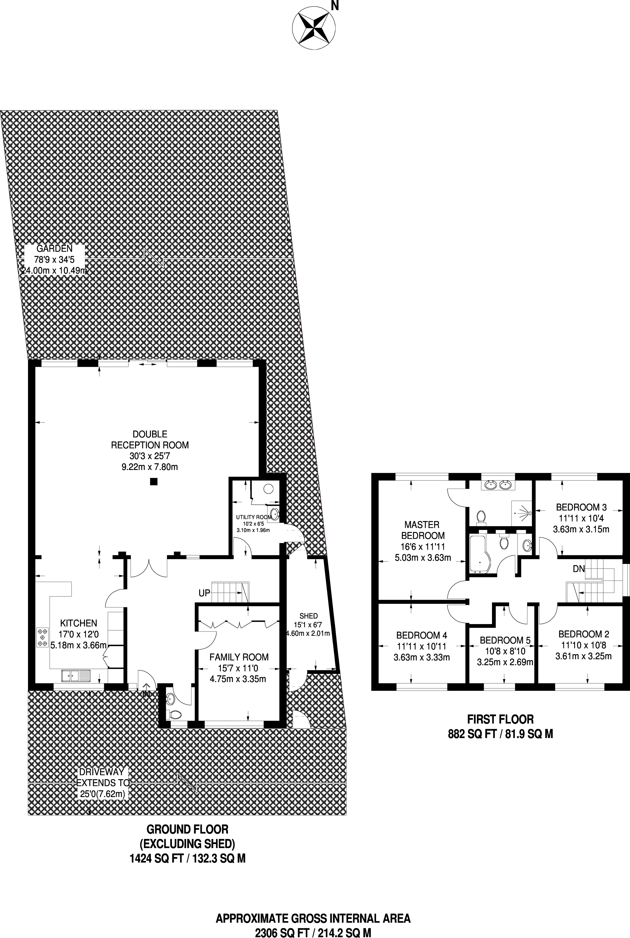
Bathrooms: 2
Bedrooms: 5

Property Description

Set on a peaceful residential street this fantastic 5bedroom detached House offers a stunning open-plan living and entertaining space leading to excellent private rear Garden.

Chandos Avenue is a quiet residential area well located for the amenities and transport links of Oakleigh Park and Totteridge and Whetstone.


Property Location

Property Marketed by Foxtons - Barnet



Phone:
Address: 98 High Street, High Barnet,

Inquire about this property

By sending, you agree to Mylisting365's Terms of Use & Privacy Policy.

Similar Properties

Detached house For Sale London
Detached house For Sale N20
London new homes for sale
N20 new homes for sale
Flats for sale London
Flats To Rent London
Flats for sale N20
Flats to Rent N20
London estate agents
N20 estate agents