5 Bedrooms Detached house for sale in Sandpiper Crescent, Coatbridge, North Lanarkshire ML5 | £ 270,000

Overview

Price: £ 270,000
Contract type: For Sale
Type: Detached house
County: North Lanarkshire
Town: Coatbridge
Postcode: ML5
Address: Sandpiper Crescent, Coatbridge, North Lanarkshire ML5
Bathrooms: 0
Bedrooms: 5

Property Description

***new to market***Set amid landscaped gardens is this impressive modern detached with double garage.

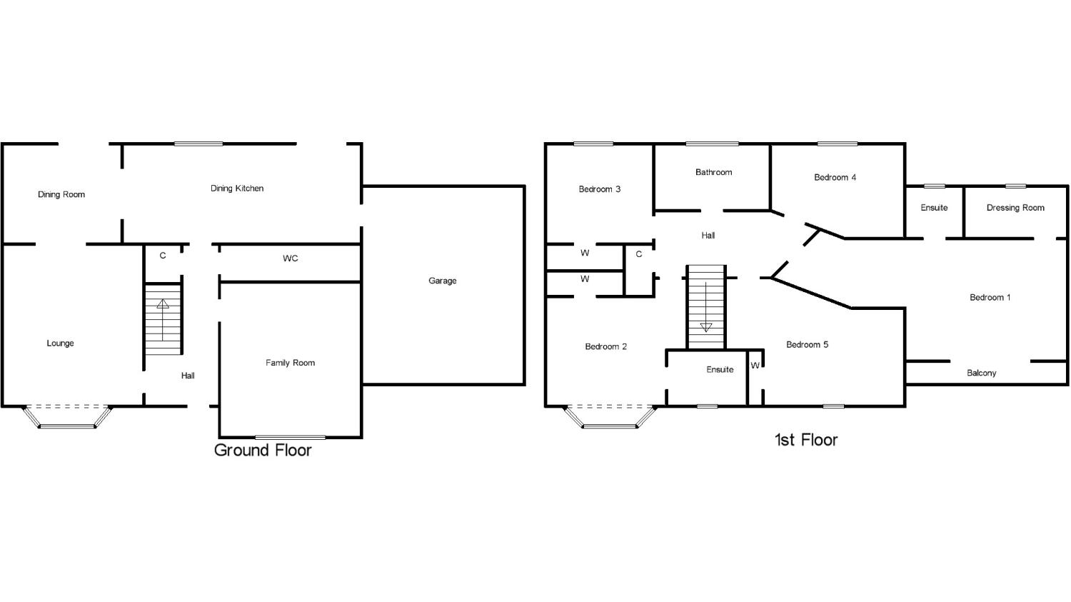
Forming part of Bellway Homes Orchid Grove Estate, The Morar provides versatile and flexible accommodation formed over two levels. The ground floor extends to entrance hallway, bay windowed lounge, separate dining room with doors leading to gardens, additional family room/study, a modern kitchen with integrated appliances and downstairs cloaks/wc. On the first floor the master bedroom has a Juliet balcony, en-suite showerroom and dressing room. There are four other bedrooms, bedroom two having an en-suite showerroom, and additional house bathroom.The property features gas central heating, double glazing and has a driveway leading to an integral double garage. There are landscaped gardens to the front and private enclosed south gardens with lawn area.

Coatbridge has a good selection of shops, including The Faraday Retail Park, and schools at primary and secondary level. The Carnbroe area is ideally placed to give quick and easy access to the M8 motorway for commuting to either Glasgow or Edinburgh.

EER Band C

• Modern detached villa
• EER Band C


Lounge15'8" x 12'7" (4.78m x 3.84m).

Dining room9'7" x 9'4" (2.92m x 2.84m).

Study/Family room12'5" x 9'3" (3.78m x 2.82m).

Dining kitchen18'9" x 9'4" (5.72m x 2.84m).

Cloaks/wc9'3" x 3'4" (2.82m x 1.02m).

Master bedroom15'4" x 11'7" (4.67m x 3.53m).

Master en-suite6'3" x 5'11" (1.9m x 1.8m).

Dressing room6'10" x 3'11" (2.08m x 1.2m).

Bedroom two11'8" x 10'10" (3.56m x 3.3m).

En=suite6'3" x 5'11" (1.9m x 1.8m).

Bedroom three8'11" x 8'11" (2.72m x 2.72m).

Bedroom four10'1" x 9' (3.07m x 2.74m).

Bedroom five12'2" x9'8" (3.7m x2.95m).

Bathroom10'3" x 5'6" (3.12m x 1.68m).



Property Location

Property Marketed by Countrywide Scotland - Airdrie



Phone:
Address: 33 Stirling Street, Airdrie

Inquire about this property

By sending, you agree to Mylisting365's Terms of Use & Privacy Policy.

Similar Properties

Detached house For Sale Coatbridge
Detached house For Sale ML5
Coatbridge new homes for sale
ML5 new homes for sale
Flats for sale Coatbridge
Flats To Rent Coatbridge
Flats for sale ML5
Flats to Rent ML5
Coatbridge estate agents
ML5 estate agents