6 Bedrooms Detached house for sale in Witherenden Hill, Burwash, Etchingham TN19 | £ 1,600,000

Overview

Price: £ 1,600,000
Contract type: For Sale
Type: Detached house
County: East Sussex
Town: Etchingham
Postcode: TN19
Address: Witherenden Hill, Burwash, Etchingham TN19
Bathrooms: 3
Bedrooms: 6

Property Description

Kestrels is a simply beautiful 6 bedroom country house, idyllically located in 10 acres of breath-taking East Sussex countryside. With elegant reception rooms, 6 bedrooms and separate, stylish ancillary accommodation, this wonderful home is one to view.

Description

Kestrels is a truly handsome 16th century Grade II Listed country house. This property has an enviable, elevated position and unrivalled panoramic views, providing a sense of peace, freedom and seclusion which truly sets Kestrels apart. The surrounding 10 acres of land include landscaped gardens, paddocks, stabling and woodland, bounded by a stream with rolling countryside beyond.
The house itself, presented in first class decorative condition and with many of its period features retained, provides the most wonderful vistas from every window. The detached, self-contained Barn Studios have been cleverly designed to capitalise on this property's fabulous setting and provide excellent versatile ancillary accommodation. The substantial outbuildings include an oak-framed garage block and workshop.
All in all, the simply breath-taking views and tranquillity that Kestrels provides, along with its excellent, adaptable accommodation, make it an absolute find.

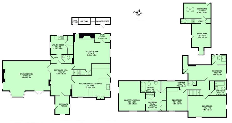
The Country House: Ground Floor

The entrance porch opens into the elegant, welcoming entrance hall with its exposed beams, wood-burning stove and solid light oak parquet flooring. The double aspect kitchen/breakfast room is fitted with bespoke oak cupboards and granite worktops, an oil fired double oven Aga and has direct access to the large south-facing terrace, organic herb garden and wonderfully maintained gardens. The tasteful drawing room features a Jetmaster fireplace, with French doors opening to another terrace with breathtaking views over the valley and surrounding countryside. The charming sitting room has an inglenook fireplace, and a separate study. The utility room leads to a courtyard with access to the various outbuildings. All in all, the ground floor of this impressive country home offers spacious, beautifully presented living accommodation throughout.

Upper Floors

The contemporary master bedroom has far reaching views over rolling hills and includes a substantial dressing room with an excellent range of wardrobes, and a well-appointed en suite with a roll top bath and power shower. With another large bedroom with its own en suite and two further double bedrooms and the family bathroom, the first floor offers generous and flexible accommodation. On the second floor, there are two additional bedrooms with exposed beams and a dormer window with superb views over the Rother Valley. The second floor also offers access to the extensive loft storage space.

The Barn Studios

A substantial detached building lying to the north east of the main house, The Barn Studios have been converted from the former barn to create accommodation of the highest standard, and are currently configured as two separate, naturally light, self-contained units. Studio One has an open plan sitting and dining room with kitchen area and glazed doors to the veranda, a separate bedroom, a bathroom, and an additional useful space on the mezzanine level. Studio Two has an open plan living area with wood-burning stove, two further rooms, a shower room, glazed doors to the veranda and also includes a mezzanine area which could serve as an additional bedroom or study.

Range Of Outbuildings

The extensive outbuildings comprise an oak-framed detached garage with parking for three cars, a large, versatile work space currently used as workshop, two store rooms and WC. The property also offers an enclosed stable yard, with an open bay double horse shelter, a hay store and store room, all fully connected to mains electricity and water. Further outbuildings include a white weather-boarded larder store, a log store, an oil tank and recycling area, a garden shed and a greenhouse.

Outside

The approach to Kestrels is down a long, private driveway, surrounded by farmland, which sweeps round to the generous parking area with spectacular views towards Broad Oak, Mayfield and Wadhurst Park. The house is surrounded by expanses of lawn, with well established flower beds and an abundance of evergreen and deciduous trees and shrubs. The spacious York stone terraces to the south and west of the house provide excellent outdoor entertaining space, with an archway and stone steps leading down to a beautiful rose garden and orchard, planted with a variety of plentiful fruit trees. Having been managed ecologically under the Countryside Stewardship Scheme, the land is a haven for nature with an abundance of birds, wildlife and wild flowers.

The Area

Burwash village is under 3 miles away and has a range of amenities including a general store, Post Office, doctor's surgery and several public houses. The villages of Wadhurst, Heathfield and Ticehurst, offering further every day facilities, are all within 5 miles and the vibrant spa town of Tunbridge Wells with its excellent commercial and leisure facilities can be reached within a 30 minute car drive or just 15 minutes on the train. The impressive, award-winning Bluewater Shopping Centre is within an hour's drive and if you want to escape to the seaside, then that can be reached via a pretty 30 minute drive. There are also plenty of excellent recreational facilities close at hand, including first class golf courses at nearby Hawkhurst and Dale Hill. A range of beautiful walks and bridlepaths surround the property.

Transport Links

Stonegate (1.8 miles) and Wadhurst (4.5 miles) both provide fast and frequent commuter services to central London, with connecting trains to Gatwick Airport from London Bridge. Ashford International can be reached within 60 minutes, with high speed services to London and the Continent and the Channel Tunnel is approximately an hour's drive from the property. The A21, offering quick and easy access to the M25 and the uk's extensive motorway network, is just 7 miles distance.

Education

The property is within easy reach of the many excellent primary and secondary schools in the locality. Within the state sector, there are primary schools at Stonegate, Etchingham, Wadhurst, and Ticehurst and at secondary level in Heathfield, Robertsbridge and Wadhurst.
Within the independent sector, Bricklehurst Manor, St Bedes, Vinehall, Claremont, Marlborough House, St Ronans, Skippers Hill, St Leonards at Mayfield, Cranbrook, Benenden and Battle Abbey are all excellent schooling options and easily accessible.


Property Location

Property Marketed by Maddisons Residential



Phone:
Address: 18 The Pantiles, Tunbridge Wells

Inquire about this property

By sending, you agree to Mylisting365's Terms of Use & Privacy Policy.

Similar Properties

Detached house For Sale Etchingham
Detached house For Sale TN19
Etchingham new homes for sale
TN19 new homes for sale
Flats for sale Etchingham
Flats To Rent Etchingham
Flats for sale TN19
Flats to Rent TN19
Etchingham estate agents
TN19 estate agents