3 Bedrooms Flat to rent in Heritage Avenue, Colindale NW9 | £ 600

Overview

Price: £ 600
Contract type: To Rent
Type: Flat
County: London
Town: London
Postcode: NW9
Address: Heritage Avenue, Colindale NW9
Bathrooms: 2
Bedrooms: 3

Property Description

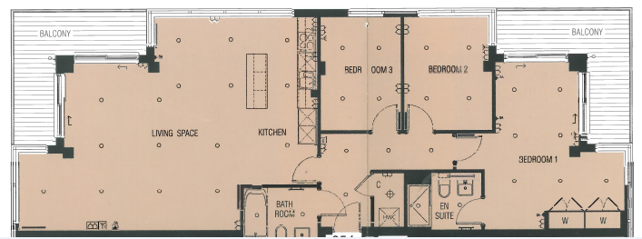
Modern apartment located on the 10th floor of Pinnacle House in the North West development of Beaufort Park.

The property offers a bright open plan living space and a fully fitted kitchen with plenty of storage and a breakfast bar.
Further benefits include three double bedrooms with an en-suite to master bedroom, a family bathroom as well as two private terraces and secured underground parking.

Residents can also enjoy the communal gardens and access the free on-site facilities of gym, swimming pool, jacuzzi and steam room


Property Location

Property Marketed by Benham and Reeves Residential Lettings - Beaufort Park



Phone:
Address: 7 Heritage Avenue, London

Inquire about this property

By sending, you agree to Mylisting365's Terms of Use & Privacy Policy.

Similar Properties

Flat To Rent London
Flat To Rent NW9
London new homes for sale
NW9 new homes for sale
Flats for sale London
Flats To Rent London
Flats for sale NW9
Flats to Rent NW9
London estate agents
NW9 estate agents