1 Bedrooms Flat to rent in Skylark, Drake Way, Reading RG2 | £ 237

Overview

Price: £ 237
Contract type: To Rent
Type: Flat
County: Berkshire
Town: Reading
Postcode: RG2
Address: Skylark, Drake Way, Reading RG2
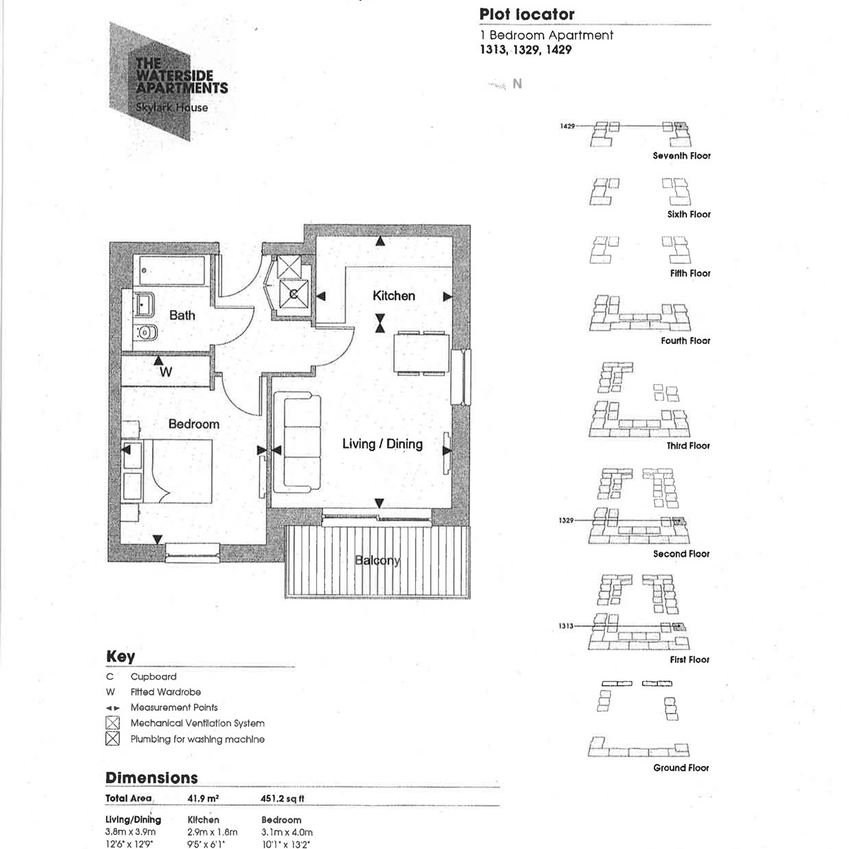
Bathrooms: 1
Bedrooms: 1

Property Description

A modern one bedroom property situated in the sought after Kennet Island development within walking distance to Green Park and easily accessible to the M4. With regular buses into Reading Town Centre, local amenities and river walks on the doorstep, this would make an ideal home for a single professional or couple alike.
Reading Borough Council Tax Band C.


Property Location

Property Marketed by Haslams Estate Agents



Phone:
Address: 159 Friar Street, Reading

Inquire about this property

By sending, you agree to Mylisting365's Terms of Use & Privacy Policy.

Similar Properties

Flat To Rent Reading
Flat To Rent RG2
Reading new homes for sale
RG2 new homes for sale
Flats for sale Reading
Flats To Rent Reading
Flats for sale RG2
Flats to Rent RG2
Reading estate agents
RG2 estate agents