2 Bedrooms Flat for sale in Artillery Place, London SE18 | £ 458,000

Overview

Price: £ 458,000
Contract type: For Sale
Type: Flat
County: London
Town: London
Postcode: SE18
Address: Artillery Place, London SE18
Bathrooms: 2
Bedrooms: 2

Property Description

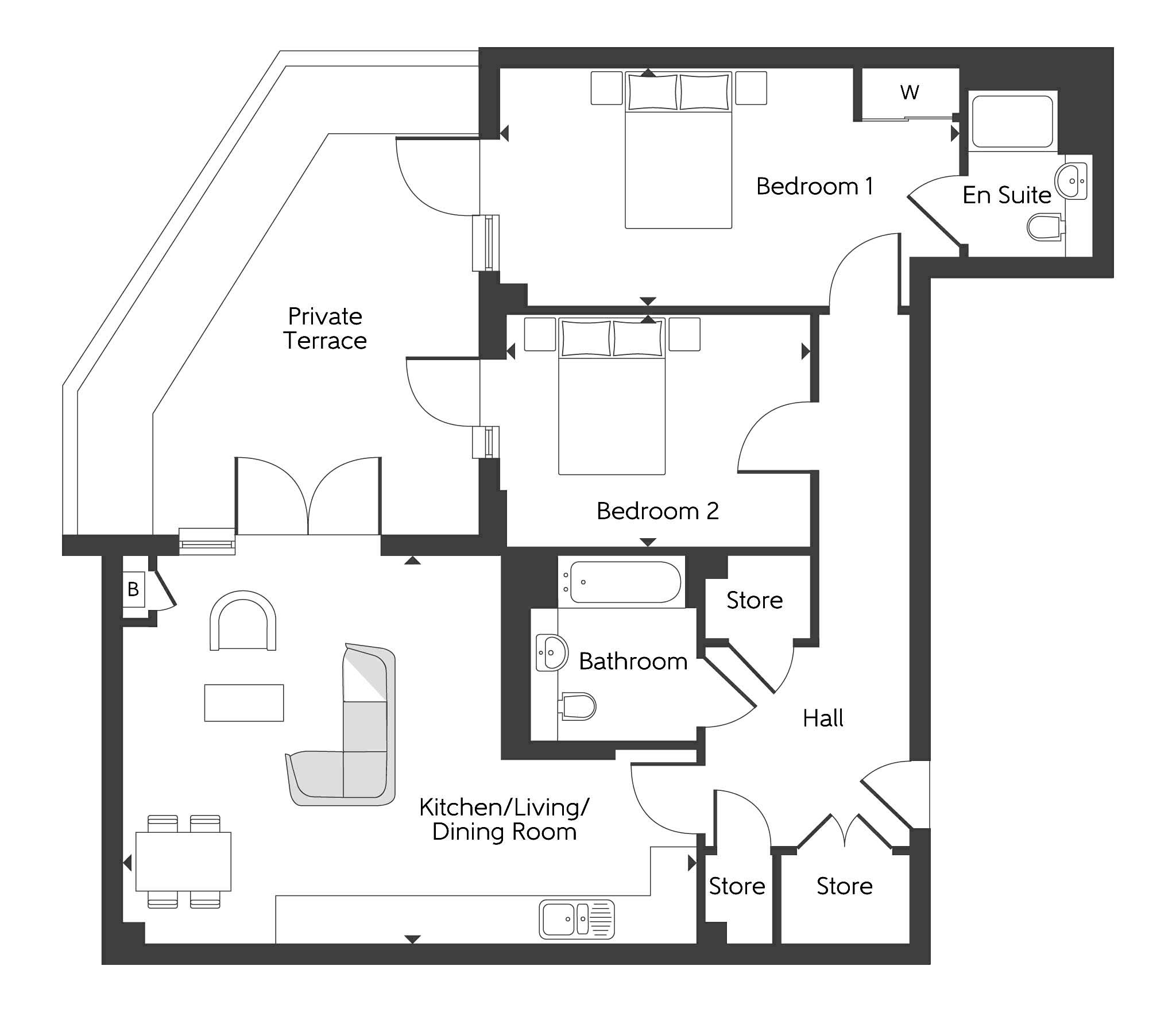
The Brompton has two bedrooms - one with an en suite shower room - a well-equipped family bathroom, and an open-plan kitchen, living and dining area with French doors that open on to a private terrace The terrace can also be reached from both bedrooms.

The kitchen benefits from an integrated fridge freezer, oven, hood and ceramic hob. Both bedrooms are carpeted.

Useful information
Walking distance to train station & DLR
Ideal for commuters
Near Woolwich Waterfront Leisure Centre
Close to Bluewater Shopping Centre & only 7 miles from Westfield Stratford
Regeneration and will benefit from Cross Rail
Close to City Airport
Help to Buy Available - Just 5% deposit!

Sales Office Opening Times
Monday - Closed
Tuesday - 10:00 - 17:00
Wednesday - 10:00 - 17:00
Thursday - 12:00 - 19:00
Friday - 10:00 - 17:00
Saturday - 10:00 - 17:00
Sunday - Closed

*Images used in this listing are indicative only


Property Location

Property Marketed by Bellway - Battalion Court



Phone:
Address: Artillery Place, Woolwich

Inquire about this property

By sending, you agree to Mylisting365's Terms of Use & Privacy Policy.

Similar Properties

Flat For Sale London
Flat For Sale SE18
London new homes for sale
SE18 new homes for sale
Flats for sale London
Flats To Rent London
Flats for sale SE18
Flats to Rent SE18
London estate agents
SE18 estate agents