2 Bedrooms Flat for sale in Hanworth Road, Hounslow TW3 | £ 325,000

Overview

Price: £ 325,000
Contract type: For Sale
Type: Flat
County: London
Town: Hounslow
Postcode: TW3
Address: Hanworth Road, Hounslow TW3
Bathrooms: 1
Bedrooms: 2

Property Description



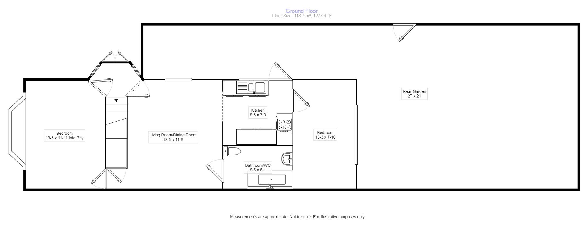
Offered with no chain. Ground floor period garden flat. In brief is comprised of communal entrance, living/dining room, fitted kitchen, 2 double bedrooms and bathroom w/c. Other benefits include direct access to a private south east facing rear garden. EPC Grade awaited.

Location

The property is located on the Whitton/Hounslow borders and is walking distance to Hounslow town centre and Hounslow mainline Station which serves London Waterloo and Hounslow central tube station. The local Schools are Orchard and Grove Road School. The local secondary School would be Heathland. Other benefits are local bus routes including the 110,111 and 281. The Whitton borders also benefits from several parks and open spaces including Hounslow Heath and Crane park.

Our View

Ideal first time buy or investment property.

Living Room / Dining Room (3.56m x 4.09m)

Kitchen (2.34m x 2.59m)

Bedroom (3.63m x 4.09m)

Bedroom (2nd) (2.39m x 4.04m)

Bathroom / WC (1.55m x 2.57m)

Rear Garden (6.40m x 8.23m)

Important note to purchasers:

We endeavour to make our sales particulars accurate and reliable, however, they do not constitute or form part of an offer or any contract and none is to be relied upon as statements of representation or fact. Any services, systems and appliances listed in this specification have not been tested by us and no guarantee as to their operating ability or efficiency is given. All measurements have been taken as a guide to prospective buyers only, and are not precise. Please be advised that some of the particulars may be awaiting vendor approval. If you require clarification or further information on any points, please contact us, especially if you are traveling some distance to view. Fixtures and fittings other than those mentioned are to be agreed with the seller.

/3


Property Location

Property Marketed by Your Move - Whitton



Phone:
Address: 115 High Street, Whitton

Inquire about this property

By sending, you agree to Mylisting365's Terms of Use & Privacy Policy.

Similar Properties

Flat For Sale Hounslow
Flat For Sale TW3
Hounslow new homes for sale
TW3 new homes for sale
Flats for sale Hounslow
Flats To Rent Hounslow
Flats for sale TW3
Flats to Rent TW3
Hounslow estate agents
TW3 estate agents