2 Bedrooms Flat for sale in Kennington Road, London SE11 | £ 775,000

Overview

Price: £ 775,000
Contract type: For Sale
Type: Flat
County: London
Town: London
Postcode: SE11
Address: Kennington Road, London SE11
Bathrooms: 1
Bedrooms: 2

Property Description

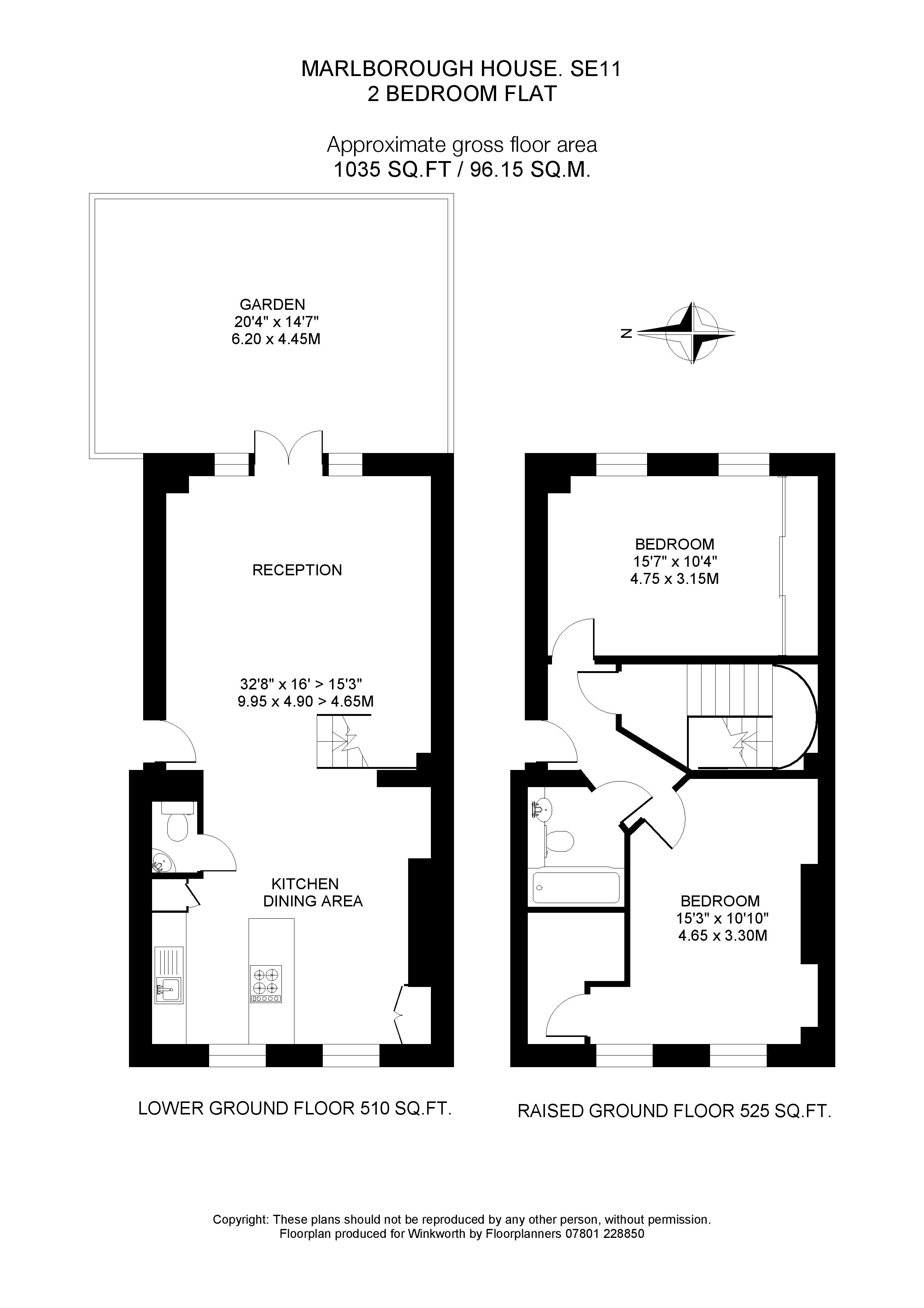
This split level flat is within Marlborough House, which is a Georgian building built around 1790 by Michael Searles. It is situated in the centre of Kennington but once you are in the flat you will feel like you are far from the buzz of Kennington Road. The flat is one of six other flats in the building and all leaseholders have a share of freehold.

Upstairs are two generous bedrooms, the master bedroom is large enough for a king-size bed, a chest of drawers and bedside tables. The bedroom benefits from substantial built in wardrobe and two arch shaped windows. The second bedroom overlooks the private courtyard, there is space for a large double bed, a desk and chest of drawers, there are built in wardrobes running the width of the bedroom providing ample storage space.

The family bathroom, which was fully refurbished in 2016, is situated off the hallway. It has a rain shower over the bath, a heated towel rail, sink, W.C. And fitted mirrored cupboards.

Connecting the floors is an impressive staircase. On the lower ground floor, you find an open plan kitchen, dining and living area. The kitchen benefits form ample storage space with granite worktops throughout. An integrated fan oven, four burner gas hob and an extractor above, integrated fridge/freezer, dishwasher and microwave oven. The dining space is well proportioned for a large dining table, a freestanding dresser a sideboard. The W.C. Sits just off the kitchen with tilled walls and a sink.

The living space itself is sizeable with space for a large sofa and armchairs, TV entertainment system and coffee table. You access the decked courtyard through the French doors in the living room, the courtyard is the perfect spot to enjoy a summer barbeque or an evening drink.

Location:
Located on Kennington Cross, the property benefits from amenities such as bars, restaurants and cafes all close by, Kennington park is only a short walk, not to mention Kennington Underground Station, which provides links into the City and West End.

Directions:
Kennington Underground Station (Northern Line – both branches) is approximately 0.3 miles away. Vauxhall Bus/Overground/Underground Stations (Victoria Line & National Rail) are approximately 0.6 miles away. Buses run frequent services into the City and West End and Santander Cycle docking stations are just across the road.


Property Location

Property Marketed by Winkworth - Kennington Sales



Phone:
Address: 299 Kennington Road, Kennington

Inquire about this property

By sending, you agree to Mylisting365's Terms of Use & Privacy Policy.

Similar Properties

Flat For Sale London
Flat For Sale SE11
London new homes for sale
SE11 new homes for sale
Flats for sale London
Flats To Rent London
Flats for sale SE11
Flats to Rent SE11
London estate agents
SE11 estate agents