2 Bedrooms Flat for sale in Manor Road, Wallington SM6 | £ 290,000

Overview

Price: £ 290,000
Contract type: For Sale
Type: Flat
County: London
Town: Wallington
Postcode: SM6
Address: Manor Road, Wallington SM6
Bathrooms: 1
Bedrooms: 2

Property Description

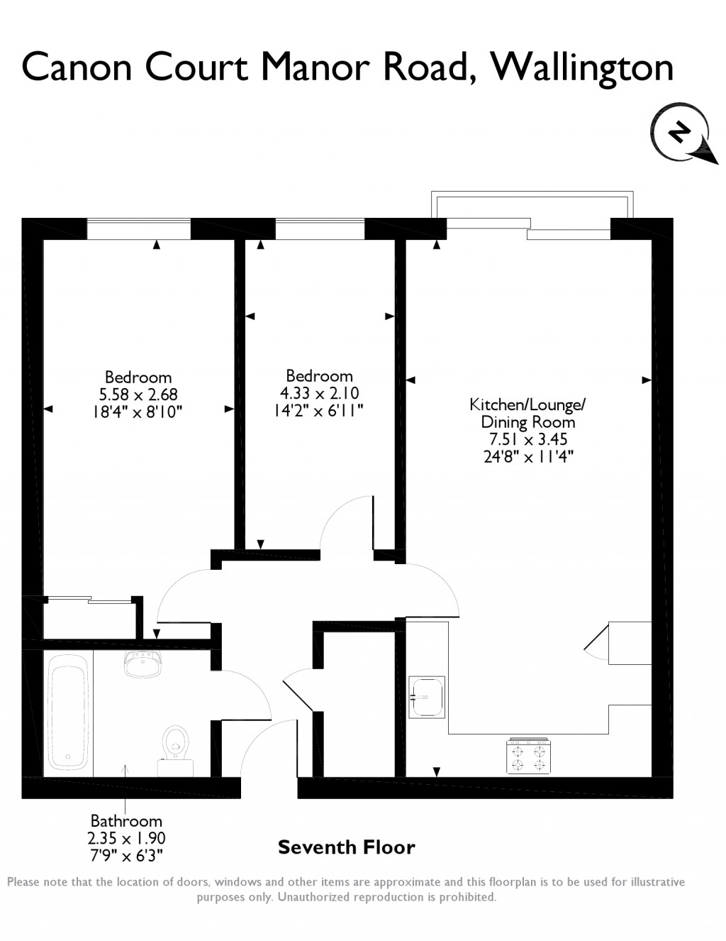
Entrance to the property is via a foyer, with lift access to the seventh floor, where the property is located.

Entrance hall: Carpeted floor, with a cupboard containing a boiler unit and storage space. Video entry phone system installed.

Kitchen/lounge/dining area 24’8”x11’4”

kitchen: Wooden flooring with a range of fitted units at eye and base level. The work surface over the base level units incorporates a sink and drainer; a built in stainless steel electric fan oven and Electrolux ceramic hob with a stainless steel splashback; space and plumbing for a half-size dishwasher and washing machine.

Lounge/dining area: Carpeted, open plan living area which extends from the kitchen. Double glazed sliding door that opens on to a balconette with views of the town beyond.

Bathroom 7’9”x6’3”: Inset down lighters, radiator, three piece suite comprising of a Sandringham white bath and shower mixer with a wall mounted glass screen, close-coupled dual flush Sandringham W.C. And pedestal basin with contemporary chrome taps, tiled walls and laminate flooring.

Main bedroom 18’4”x8x10”: Spacious room with carpeted floors and built-in wardrobe.

Second bedroom 14’2”x6’11”: Room with carpeted floors.

Exterior: Parking is available in the nearby roads and there is access to a communal rooftop garden on the ninth floor.

General:
‘nibe’ electric heating with radiators
Telephone points to living area and master bedroom
Bike store

There are a good mix of shops on the main high street, including Sainsbury’s, Tesco Express, Cafe Nero, wh Smith and Dorothy Perkins. You will spoilt for choice with some great places to eat in town, and plenty of bars and traditional pubs for any social occasion.

Canon Court is well positioned, adjacent to the mainline station at Wallington. Services operate to London Bridge and Victoria via West Croydon and to Epsom and beyond, via Sutton. By car, it is 15 minutes to the M23 and 17 minutes to the M25. For those trips abroad, Gatwick airport can be reached in 30 minutes, while Heathrow airport can be reached in 50 minutes.

Travel times from Wallington taken from www.Tfl.Gov.Uk:
Wallington - West Croydon 6 mins - Clapham Junction 29 mins - London Bridge 31 mins - London Victoria 37 mins


Property Location

Property Marketed by Emoov National



Phone:
Address: Copenhagen House, 5-10 Bury Street, London

Inquire about this property

By sending, you agree to Mylisting365's Terms of Use & Privacy Policy.

Similar Properties

Flat For Sale Wallington
Flat For Sale SM6
Wallington new homes for sale
SM6 new homes for sale
Flats for sale Wallington
Flats To Rent Wallington
Flats for sale SM6
Flats to Rent SM6
Wallington estate agents
SM6 estate agents