3 Bedrooms Flat for sale in Otley Road, Harrogate, North Yorkshire HG2 | £ 195,000

Overview

Price: £ 195,000
Contract type: For Sale
Type: Flat
County: North Yorkshire
Town: Harrogate
Postcode: HG2
Address: Otley Road, Harrogate, North Yorkshire HG2
Bathrooms: 1
Bedrooms: 3

Property Description

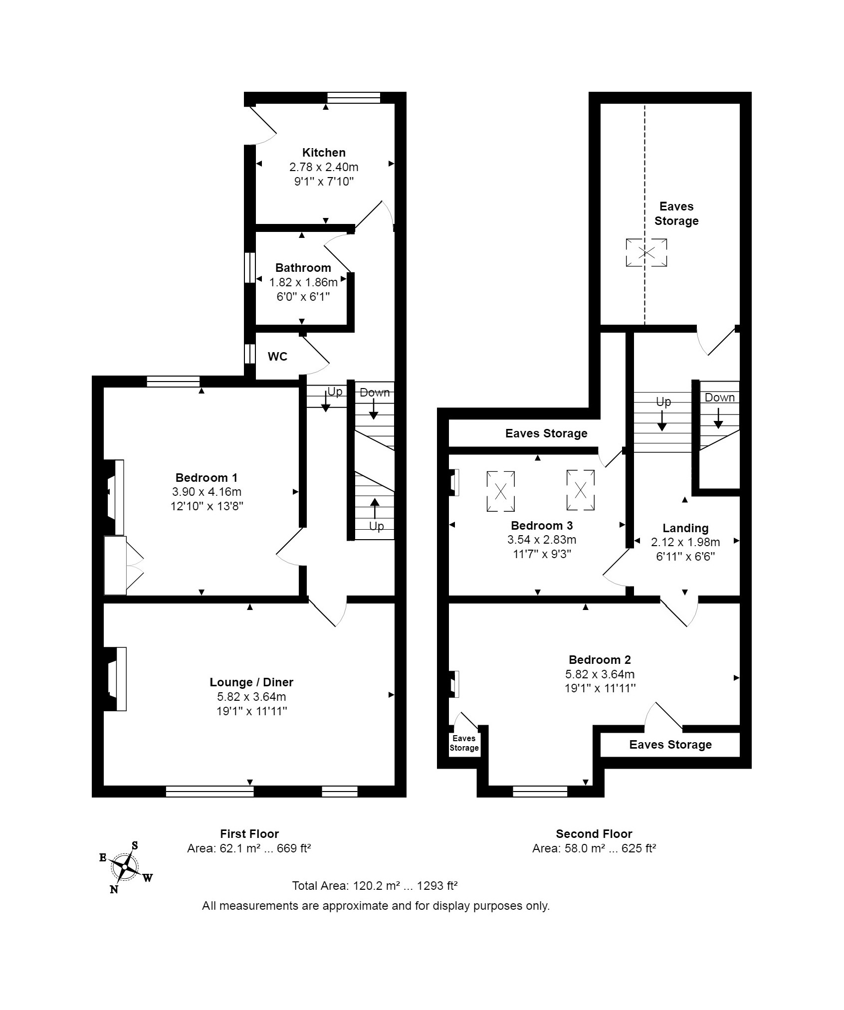
This extremely spacious two/three bedroom duplex apartment occupies a desirable position to the South-West of Harrogate's town centre and offers a huge amount of scope to update and re-model to suit the individual including a large eaves storage room ripe for conversion into a second bathroom.

Accessed via a communal hall up to the first floor, the apartment opens into a split level hall. To the front elevation there is a lovely, light and airy lounge with far reaching views towards the town centre and countryside beyond. Adjoining there is a well proportioned double bedroom with a fitted wardrobe. To the rear elevation is a fitted kitchen and a bathroom with a separate w/c. Stairs leads up to the second floor which offers an array of eaves storage space, two double bedrooms and the previously mentioned storage room ideal for conversion into a second bathroom.

Directions

Proceed up the Otley Road from the Prince Of Wales roundabout and through the traffic lights with the turning into Harlow Moor Road. Continue ahead where the property can be found on the left hand side.

Viewing

Strictly by appointment through Myrings - Telephone .
Email:

You may download, store and use the material for your own personal use and research. You may not republish, retransmit, redistribute or otherwise make the material available to any party or make the same available on any website, online service or bulletin board of your own or of any other party or make the same available in hard copy or in any other media without the website owner's express prior written consent. The website owner's copyright must remain on all reproductions of material taken from this website.


Property Location

Property Marketed by Myrings Estate Agents Ltd



Phone:
Address: 10 Princes Square, Harrogate

Inquire about this property

By sending, you agree to Mylisting365's Terms of Use & Privacy Policy.

Similar Properties

Flat For Sale Harrogate
Flat For Sale HG2
Harrogate new homes for sale
HG2 new homes for sale
Flats for sale Harrogate
Flats To Rent Harrogate
Flats for sale HG2
Flats to Rent HG2
Harrogate estate agents
HG2 estate agents