2 Bedrooms Flat for sale in Regency Gardens, Hyde SK14 | £ 102,000

Overview

Price: £ 102,000
Contract type: For Sale
Type: Flat
County: Greater Manchester
Town: Hyde
Postcode: SK14
Address: Regency Gardens, Hyde SK14
Bathrooms: 1
Bedrooms: 2

Property Description



Reeds Rains are pleased to offer for sale this first floor two bedroom modern apartment. An excellent location for the commuter, . Attractive development. Briefly comprising, security entrance, hall, lounge and separate kitchen, two bedrooms. Parking. EPC Grade = C.

Communal Entrance

Entrance Hall

Wood laminate flooring, intercom system, access to all the rooms, radiator.

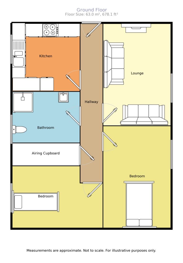
Lounge (4.50m x 5.77m)

Upvc double glazed window to the front elevation, radiator, wood laminate flooring, alarm panel, TV point, feature fire place.

Kitchen (1.88m x 2.92m)

With a modern range of wall and base units with a complementary work surface, pleasant views over the local countryside, integrated oven and hob with extractor fan, part tiled elevations, single drainer and sink with a mixer tap, space for a fridge freezer and washing machine, Upvc double glazed window to the rear elevation.

Master Bedroom (3.05m x 3.23m)

Wood laminate flooring, Upvc double glazed window to the front elevations, radiator.

Bedroom (3.10m x 2.87m)

L-shaped room, wood laminate flooring, Upvc double glazed window to the rear elevation with pleasant views over the local countryside, radiator.

Bathroom / Shower Room / WC

Comprising of a modern three piece suite that has recently been installed, hand wash basin and vanity unit, stand in shower, low level flush WC, chrome heated towel tail, feature spot down lights, tiled elevations, Upvc double glazed window to the rear elevation.

External

There are communal well kept gardens with an allocated parking space.

Important note to purchasers:

We endeavour to make our sales particulars accurate and reliable, however, they do not constitute or form part of an offer or any contract and none is to be relied upon as statements of representation or fact. Any services, systems and appliances listed in this specification have not been tested by us and no guarantee as to their operating ability or efficiency is given. All measurements have been taken as a guide to prospective buyers only, and are not precise. Please be advised that some of the particulars may be awaiting vendor approval. If you require clarification or further information on any points, please contact us, especially if you are traveling some distance to view. Fixtures and fittings other than those mentioned are to be agreed with the seller.

/8


Property Location

Property Marketed by Reeds Rains



Phone:
Address: 102 Market Street, Hyde

Inquire about this property

By sending, you agree to Mylisting365's Terms of Use & Privacy Policy.

Similar Properties

Flat For Sale Hyde
Flat For Sale SK14
Hyde new homes for sale
SK14 new homes for sale
Flats for sale Hyde
Flats To Rent Hyde
Flats for sale SK14
Flats to Rent SK14
Hyde estate agents
SK14 estate agents