2 Bedrooms Flat for sale in Sunningdale Drive, Buckshaw Village, Chorley PR7 | £ 94,500

Overview

Price: £ 94,500
Contract type: For Sale
Type: Flat
County: Lancashire
Town: Chorley
Postcode: PR7
Address: Sunningdale Drive, Buckshaw Village, Chorley PR7
Bathrooms: 2
Bedrooms: 2

Property Description

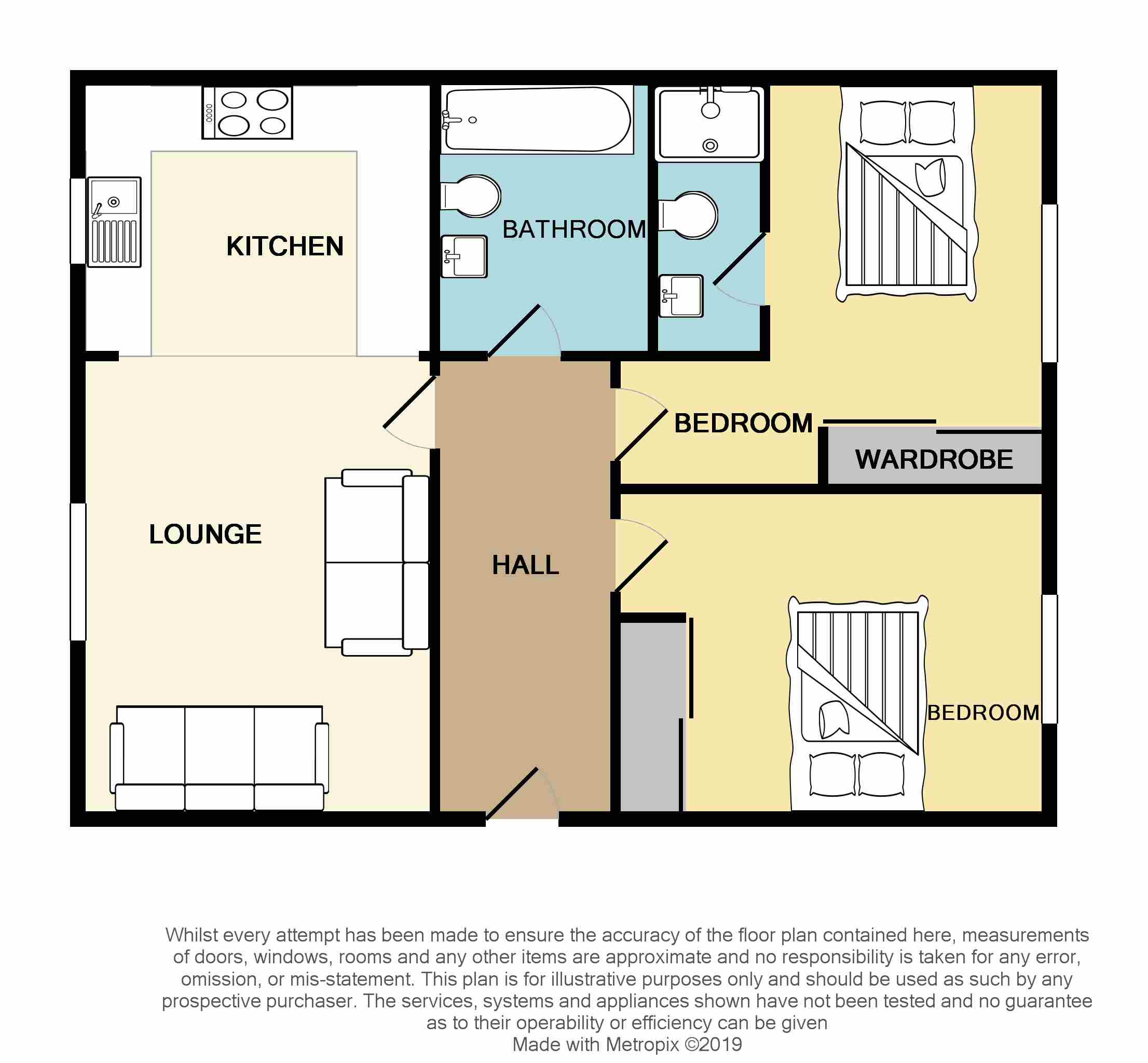
Hallway Laminate flooring, airing cupboard with tank, door release intercom system, panel heater, ceiling light point and wall mounted electric heater.

Lounge 4.64 x 3.61 Great size lounge with laminate flooring, double glazed window to front, TV points, 2 x ceiling light points, wall mounted electric heaters and opening to kitchen.

Kitchen 3.8 x 3.0 A range of wood effect wall and base units, vinyl flooring, integrated electric oven, hob and extractor, stainless steel sink unit and mixer taps, double glazed window to front aspect.

Bedroom one 4.15 x 3.54 max Double bedroom with wall mounted heater and double glazed window to rear overlooking wooded area, fitted wardrobes, ceiling light point and door to en-suite.

En suite Vinyl flooring, WC, wash hand basin, double shower cubicle with power shower, heated towel rail and ceiling light point.

Bedroom two 4.25 x 2.43 Another double bedroom with wall mounted heater, fitted wardrobes, ceiling light point and double glazed window to rear overlooking wooded area.

Parking Allocated parking space and further visitor spaces available. The property backs on to a quiet wooded area and there are communal gardens to the front and back.

Buckshaw village Buckshaw Village is perfectly situated for commuting to Preston, Manchester or Blackpool with the M6, M61 and M55 motorways minutes away, The new Buckshaw village parkway train station gives links to Manchester Piccadilly, Victoria and Preston. Within walking distance are Tesco, an Italian restaurant, coffee shop, barbers and various takeaways. The war horse pub along with the Harvester. A new Aldi has opened. There is a community centre hosting many activities, primary school, doctors surgery and dentist, the Buckshaw hub which offers a brand new nursery, children's swimming pool, hair salon and cafe. Buckshaw village really does have it all!

Mortgage services If you would like a free mortgage consultation our in house financial adviser will be able to meet with you discuss your requirements and to assess your mortgage capability. You will receive professional and independent mortgage advice along with any other associated services.


Property Location

Property Marketed by Redrose



Phone:
Address: 15 Barnes Wallis Way, Buckshaw Village, Chorley

Inquire about this property

By sending, you agree to Mylisting365's Terms of Use & Privacy Policy.

Similar Properties

Flat For Sale Chorley
Flat For Sale PR7
Chorley new homes for sale
PR7 new homes for sale
Flats for sale Chorley
Flats To Rent Chorley
Flats for sale PR7
Flats to Rent PR7
Chorley estate agents
PR7 estate agents