1 Bedrooms Flat for sale in The Ridgeway, North Harrow, Greater London HA2 | £ 295,000

Overview

Price: £ 295,000
Contract type: For Sale
Type: Flat
County: London
Town: Harrow
Postcode: HA2
Address: The Ridgeway, North Harrow, Greater London HA2
Bathrooms: 0
Bedrooms: 1

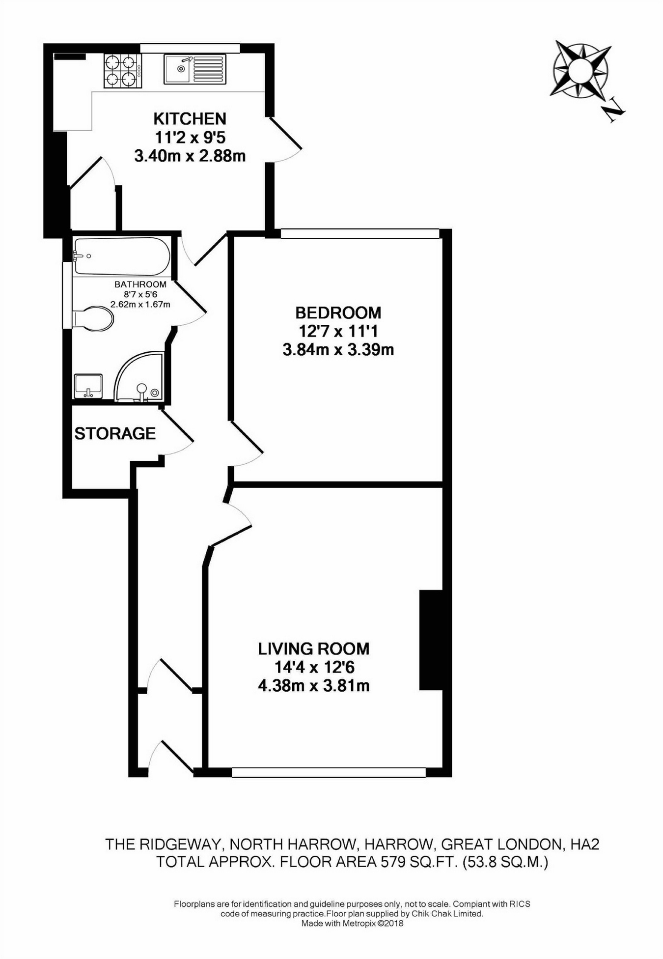
Property Description

Elliott & Co are delighted to offer this spacious one bedroom ground floor maisonette in excellent condition throughout. The property is situated close to shopping facilities, sought after schools, North Harrow Metropolitan line station and other transport links.

The accommodation briefly comprises: Entrance hallway, living room, fitted kitchen, double bedroom and bathroom. Further benefits include gas central heating, double glazing and own section of garden.

Book your appointment now to avoid disappointment !

Ground Floor

Entrance Porch
Double glazed front door leading into entrance porch with door to:

Hallway
With doors to all rooms, large storage cupboard and radiator

Lounge / Dining Room
Excellent size with marble feature fireplace, large double glazed window to front aspect and radiator

Bedroom
Spacious bedroom with large rear aspect double-glazed window overlooking garden.

Kitchen
Good size fitted kitchen with a good range of base and wall mounted units incorporating stainless steel sink unit with mixer tap, oven and hob with extractor hob over. Large double glazed window and door to rear garden.

Bathroom
Good size bathroom with panel bath, shower cubical with power shower, low level WC, vanity sink with mixer tap, cupboard under and mirror over.

Garden
Excellent size rear garden mainly laid to lawn (Section to right of the property).

Lease, Ground Rent, Service Charge
Lease- 153 years
Service Charge- £0 per annum
Ground Rent- £0 per annum

This information has been provided by the current vendor. Please ensure that your legal representative will verify these fact.

Agents notes
• money laundering regulations - Intending purchasers will be asked to produce identification documentation at a later stage and we would ask for your co-operation in order that there will be no delay in agreeing the sale.
• These particulars do not constitute part or all of an offer or contract.
• The measurements indicated are supplied for guidance only and as such must be considered incorrect.
• Potential buyers are advised to recheck the measurements before committing to any expense.
• Elliott & Co has not tested any apparatus, equipment, fixtures, fittings or services and it is the buyer’s interests to check the working condition of any appliances.
Elliott & Co has not sought to verify the legal title of the property and the buyers must obtain verification from their solicitor.

Disclaimer
Elliott & Co Estate Agents is the seller's agent for this property. Your conveyancer is legally responsible for ensuring any purchase agreement fully protects your position. We make detailed enquiries of the seller to ensure the information provided is as accurate as possible. Please inform us if you become aware of any information being inaccurate.
All rights reserved. Any unauthorised broadcasting, public performance, copying or re-recording will constitute an infringement of copyright.



Property Location

Property Marketed by Elliott and Company



Phone:
Address: 14 Long Drive, South Ruislip

Inquire about this property

By sending, you agree to Mylisting365's Terms of Use & Privacy Policy.

Similar Properties

Flat For Sale Harrow
Flat For Sale HA2
Harrow new homes for sale
HA2 new homes for sale
Flats for sale Harrow
Flats To Rent Harrow
Flats for sale HA2
Flats to Rent HA2
Harrow estate agents
HA2 estate agents