2 Bedrooms Flat for sale in Walter Mead Close, Ongar, Essex CM5 | £ 300,000

Overview

Price: £ 300,000
Contract type: For Sale
Type: Flat
County: Essex
Town: Ongar
Postcode: CM5
Address: Walter Mead Close, Ongar, Essex CM5
Bathrooms: 1
Bedrooms: 2

Property Description

A two bedroom duplex apartment set within a popular location, just a short walk to the High Street. The property benefits from its own entrance, two bedrooms, double glazing, gas central heating and allocated parking.

Overview & Location

The property is located in a very popular location, just a short walk to the High Street and benefits from being within close proximity of great schools, restaurants and all local amenities.

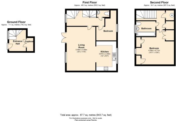
Main Accommodation

Entrance via part glazed door to entrance hallway.

Entrance Hall

Ceiling cornice. Staircase ascending to the first floor. Fitted cupboard. Radiator. With ornate cover. Wood effect floor.

First Floor Landing

Double glazed window to front elevation. Radiator with ornate cover. Staircase ascending to second floor.

Cloakroom

Double glazed translucent window to side elevation. Suite comprises of wash hand basin and low level wc.

Living Room (18' 0" x 11' 9")

Double glazed window to rear elevation and double glazed double doors to Juliette balcony. Ceiling cornice. Two radiators, one with ornate cover. Wood effect floor. Open plan to kitchen.

Kitchen (12' 0" x 8' 2")

Double glazed window to rear elevation. Recess ceiling lights and ceiling cornice. Fitted with a contemporary range of units with contrasting work surfaces and glass splashbacks. Inset one and a half bowl stainless steel sink with mixer tap. Integrated appliances include unbranded four ring hob with extractor hood above and oven below, dishwasher and fridge/freezer. Provision for washing machine. Wood floor.

Bedroom Two (11' 9" x 7' 7")

Double glazed window to rear elevation Ceiling cornice. Radiator with ornate cover.

Second Floor Landing

Fitted cupboard. Doors to following accommodation.

Master Bedroom (15' 6" x 14' 1")

Double glazed window to front elevation. Ceiling cornice. Built in wardrobes. Further eves storage. Radiator with ornate cover.

Bathroom

2.54m - 1.35m - Double glazed Velux window. Recess ceiling lights and ceiling mounted extractor fan. Contemporary style suite comprises of panelled bath with chrome fitments and shower attachment, vanity wash hand basin and low level wc. Fully tiles walls with contrasting tiled floor.

Exterior

Externally the property features well maintained communal areas and the benefit of allocated parking for one car.


Property Location

Property Marketed by Balgores Hayes



Phone:
Address: 134 High Street, Ongar

Inquire about this property

By sending, you agree to Mylisting365's Terms of Use & Privacy Policy.

Similar Properties

Flat For Sale Ongar
Flat For Sale CM5
Ongar new homes for sale
CM5 new homes for sale
Flats for sale Ongar
Flats To Rent Ongar
Flats for sale CM5
Flats to Rent CM5
Ongar estate agents
CM5 estate agents