3 Bedrooms for sale in Caverswall Common, Caverswall, Stoke-On-Trent ST11 | £ 425,000

Overview

Price: £ 425,000
Contract type: For Sale
Type:
County: Staffordshire
Town: Stoke-on-Trent
Postcode: ST11
Address: Caverswall Common, Caverswall, Stoke-On-Trent ST11
Bathrooms: 3
Bedrooms: 3

Property Description

How to find your perfect home? How to find your perfect location? How to live happily ever after?.. If that's the question then all your 'how to's' are answered with this stunning home having the most amazing views over Caverswall Common where every window tells a story! Lovingly extended, renovated and artistically designed by the current owners - this family home is superbly stylish throughout. - Set along a private and extensive driveway leading to just two properties and surrounded by the greenest of fields we have Mount Pleasant Farm Bungalow nestled just off the beaten track on an excellent sized plot. Detached and having a gorgeous Lounge, Stunning Open Plan Dining Kitchen/Family Room, Conservatory, Master suite and Bathroom to the ground floor. Impressive slumber arrangements follow to the first floor with a large play area/landing, two superb bedrooms and further Bathroom. Externally there are various seating and entertainment areas taking full advantage of the views to open fields just right for daydreaming or that evening G and T as you watch the sun set. In addition to the gardens we also have the Stables/Tack room and paddock measuring 0.2 acres. With Style, Space and Incredible Views - this really is Country Living at it's Best! - Ring now to secure your viewing.

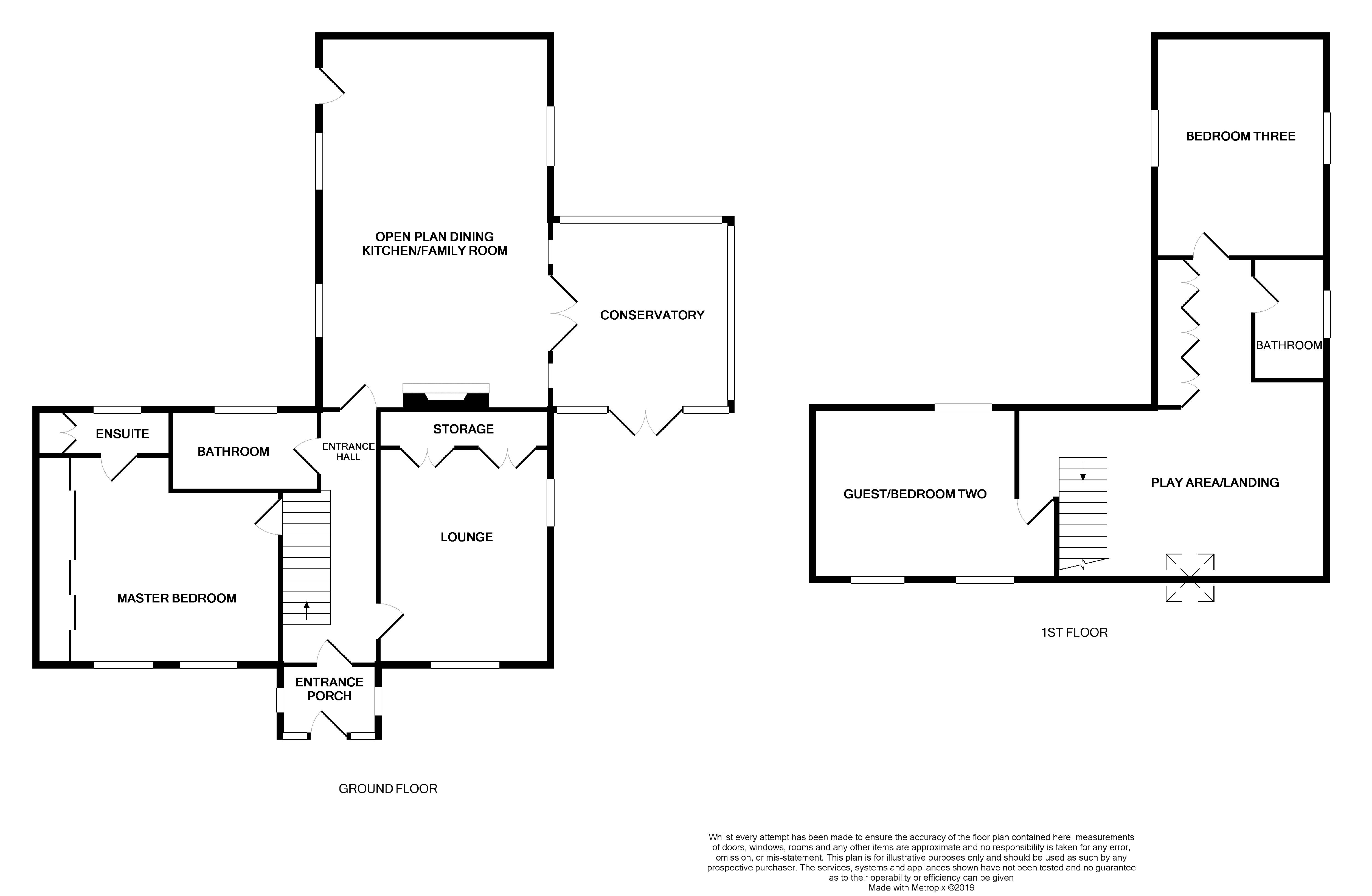
Ground Floor

Entrance Porch (4' 11'' x 6' 8'' (1.50m x 2.03m))

There is a UPVC entrance door having double glazed panels to the centre and window panels either side that give access into the entrance porch. With two further double glazed windows, tiled floor, two courtesy lights and a further UPVC door having an opaque double glazed and ornately leaded panel to the centre which leads into the entrance hall.

Entrance Hall (17' 6'' x 5' 11'' (5.33m x 1.80m))

With stairs that rise to the first floor, under stairs recess, ceiling spotlights, radiator and doors that lead to the majority of ground floor rooms. Throughout the entrance hall there is oak effect laminate flooring.

Lounge (17' 6'' x 11' 8'' (5.33m x 3.55m))

There are two UPVC double glazed windows overlooking the gardens, one to the front elevation and one to the side elevation. With radiator, television connection point, telephone point and two built-in store cupboards both of which have substantial double opening doors and fitted shelving.

Open Plan Dining Kitchen / Family Area (25' 8'' x 14' 10'' (7.82m x 4.52m))

Family Area (0' 0'' x 0' 0'' (0.00m x 0.00m))

There is a feature fireplace having oak plinth, tiled hearth and housing a multi fuel burning stove. There is a television connection point, radiator, UPVC double glazed window and UPVC double glazed French doors giving access out to the conservatory. The family area extends to the kitchen.

Kitchen

There are worktops with a range of charcoal grey high gloss fronted base units below incorporating both drawers and cupboards together with deep pan drawers and a wine rack. There is a matching range of wall mounted units with the high gloss charcoal grey fronted doors and a substantial wall unit which houses the integrated double oven, one of which has a grill facility, an integrated microwave, fridge and freezer. With a one and a half bowl single drainer sink unit with swan necked mixer tap, an inset four ring electric hob with coloured glass splashback and stainless extractor hood above. With coloured glass splashbacks and complimentary upstands. The kitchen area has a peninsular unit which extends to form a breakfast bar below which are built-in base cupboards having double opening doors with cashmere grey high gloss fronted doors together with an additional wine rack. The kitchen is finished with a radiator, telephone connection point, two UPVC double glazed windows one to either side and a door gives access out to one of the gardens.

Conservatory (13' 0'' x 12' 2'' (3.96m x 3.71m))

Accessed via the family area. Of half height brick wall and UPVC construction and having a self cleaning glass roof. With radiator, tiled floor, vaulted ceiling and with double doors which open to the decked terrace and entertainment area. Within the conservatory there is a worktop and concealed below behind high gloss fronted doors we have plumbing for the automatic washing machine along with space for an additional appliance.

Master Bedroom Suite (0' 0'' x 0' 0'' (0.00m x 0.00m))

Master Bedroom (14' 4'' (max) x 16' 9'' (4.37m (max) x 5.10m))

With two UPVC double glazed windows to the front elevation, radiator, a superb range of fitted wardrobes having mirror fronted doors providing both hanging rails, sets of drawers and fitted shelving. There is a television connection point and a door leads through to the master en-suite.

Master En-Suite (2' 7'' x 7' 9'' (0.79m x 2.36m))

Fitted with a wall mounted wash hand basin with mixer tap and tiled splashback, a conceal cistern WC with display plinth and there is a UPVC double glazed window to the rear elevation. There is a good sized store cupboard having double opening doors.

Bathroom (5' 7'' x 10' 3'' (1.70m x 3.12m))

Fitted with a suite that comprises a panelled bath having mixer tap and an electric shower unit above with a glazed shower screen; there is a display plinth with an inset vanity wash hand basin with mixer tap and a concealed cistern WC. Below the display plinth is a good range of built-in vanity cupboards and drawers. The walls are tiled and the flooring is wood effect vinyl. There is a radiator, chrome ladder style towel rail and an opaque UPVC double glazed window to the rear elevation.

First Floor

Play Area / Landing (10' 9'' (min) x 16' 3'' (max) (3.27m (min) x 4.95m (max)))

With a radiator, double glazed skylight window, plenty of eaves storage space and also a television connection point. There is a recess with fitted shelves.

Bedroom Two / Guest Bedroom (10' 4'' x 16' 8'' (3.15m x 5.08m))

With two UPVC double glazed windows to the front elevation giving tremendous views and also a double glazed window to the rear elevation. There is a radiator, recess for storage and a television connection point.

Inner Hallway

Leading to bedroom three and the bathroom which has a UPVC double glazed window to the side elevation and also having a substantial amount of storage space with three sets of double opening doors providing oceans of storage.

Bedroom Three (15' 1'' x 9' 1'' (average) (4.59m x 2.77m (average)))

There are two UPVC double glazed windows to the side elevation giving substantial views over the surrounding countryside, Caverswall Common and the fields beyond. With radiator and eaves storage space.

Bathroom (8' 4'' x 5' 0'' (2.54m x 1.52m))

Fitted with a suite that comprises a panelled bath having a central waterfall effect mixer tap with showerhead attachment. There is a vanity wash hand basin with waterfall effect mixer tap and vanity cupboard below with deep drawers and a concealed cistern WC. With part tiling around the bath, tiled splashback to the vanity wash hand basin, radiator, wood effect vinyl flooring and UPVC double glazed windows again giving substantial views over Caverswall Common and the surrounding fields.

Exterior

The property sits on quite substantial grounds predominantly laid to lawn having borders and beds containing a variety of maturing shrubs and mature trees. Leading from the conservatory there is a superb decked sun terrace affording substantial views over Caverswall Common to the fields beyond. The gardens surround the property with feature seating areas. The gardens are enclosed by a mixture of close board fencing and natural hedging. The property is approached via a private driveway which serves both this property and Mount Pleasant Farm

Stables (11' 4'' x 30' 7'' (3.45m x 9.31m))

There are two stables together with a tack room.

Paddock

The paddock is all grass and with a pond. Enclosed by natural hedging and picket fencing.

Directions

From School Lane by the 'Auctioneers Arms Public House' go right along The Green. At the end of the road turn left onto Roughcote Lane and at the end turn right onto Caverswall Common. Proceed along Caverswall Common and the private driveway will be found on the right hand side signposted 'Mount Pleasant Farm'. Turn into the private driveway.


Property Location

Property Marketed by James Du Pavey



Phone:
Address: Christchurch Way, Stone

Inquire about this property

By sending, you agree to Mylisting365's Terms of Use & Privacy Policy.

Similar Properties

For Sale Stoke-on-Trent
For Sale ST11
Stoke-on-Trent new homes for sale
ST11 new homes for sale
Flats for sale Stoke-on-Trent
Flats To Rent Stoke-on-Trent
Flats for sale ST11
Flats to Rent ST11
Stoke-on-Trent estate agents
ST11 estate agents