5 Bedrooms for sale in Lower Green, Wakes Colne, Colchester CO6 | £ 1,250,000

Overview

Price: £ 1,250,000
Contract type: For Sale
Type:
County: Essex
Town: Colchester
Postcode: CO6
Address: Lower Green, Wakes Colne, Colchester CO6
Bathrooms: 0
Bedrooms: 5

Property Description

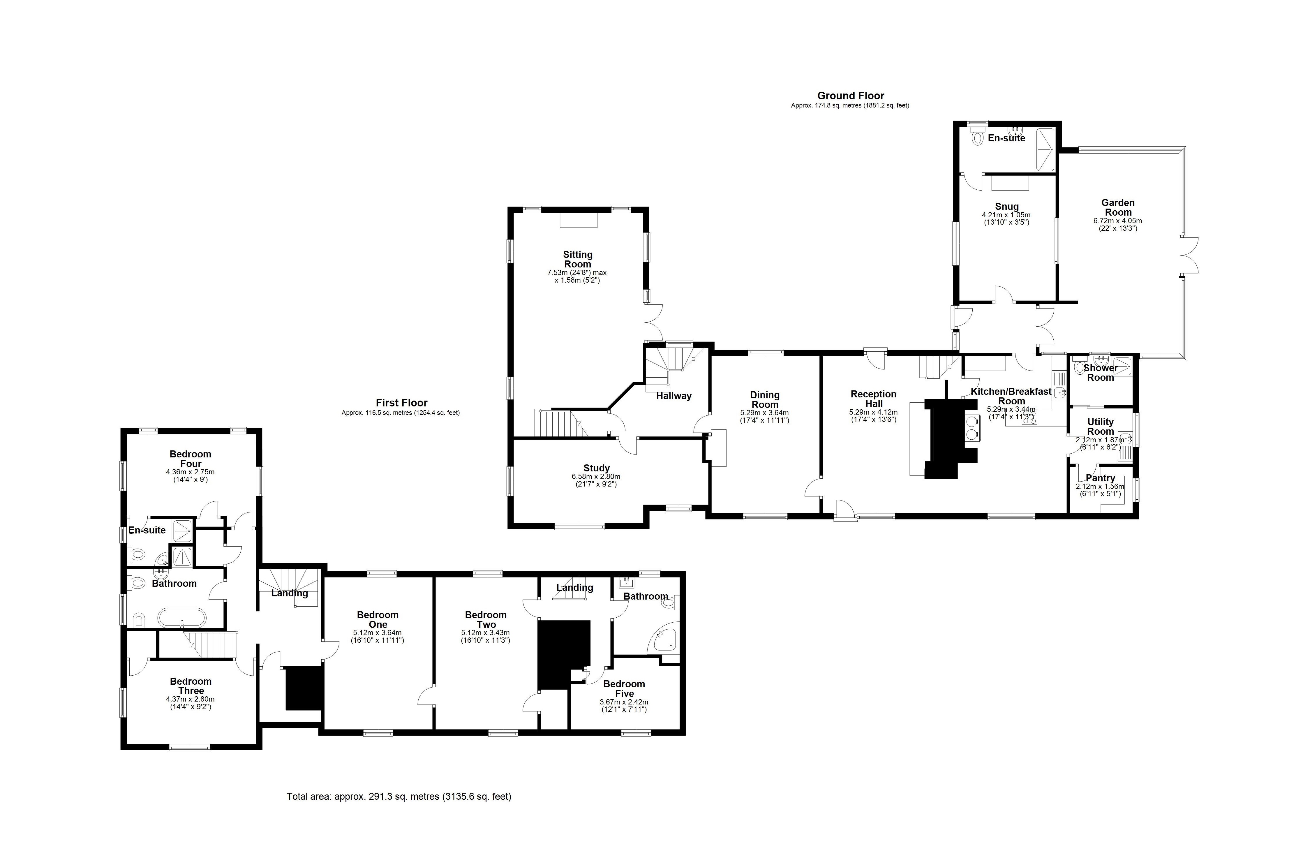
An imposing Grade II listed farmhouse set amongst a range of useful outbuildings in grounds of 5.5 acres with further land available by separate negotiation. The property enjoys five bedrooms complimented by two bathrooms, two ensuites and a further shower room, whilst ground floor accommodation comprises; four reception rooms, kitchen breakfast room, utility, larder, study and snug.

This characterful home exhibits many period features and stands comfortably within its mature grounds with paved terraces, formal lawns, established pond and vegetable garden. Positioned close to Chappel and Wakes Colne railway station, between the towns of Colchester and Halstead, and not far from the A12 and Marks Tey mainline railway station.

The Property

The front entrance door leads into a welcoming reception hall. This is a bright room enjoying a dual aspect with window to the front and part glazed door to the rear, stairs rise to the first floor and doors lead off to the dining room and kitchen breakfast room. Currently used as a cozy seating area the focal point is an impressive redbrick inglenook fireplace with oak bressumer beam, tiled hearth and inset cast iron wood burning stove. There are a wealth of exposed timbers and a characterful brick floor.

Kitchen Breakfast Room..

In a traditional farmhouse kitchen style there are a range of wall and base mounted units arranged around a charming green Rayburn, with work surfaces and inset electric oven, hob and one and a half bowl sink drainer unit. There are windows to the front and rear and doors lead through to the utility room and rear lobby. The utility has a window to the side, range of matching units with inset stainless steel sink drainer, space and plumbing for a washing machine and dishwasher. A door leads to a fully shelved larder and a sliding door leads to a shower room and WC.

Rear Lobby..

The rear lobby has a door to the rear courtyard and coats hanging space, further doors lead to the garden room and snug.

Garden Room..

Added by the current owners and constructed sympathetically by ‘Heritage Conservatories’ this is a fantastic addition to the home. Perfect for entertaining this room enjoys a dual aspect overlooking the pond and paddocks beyond, with a tiled floor and French doors opening on the rear deck. Adjacent the snug room benefits from two windows to the side and a brick fireplace with inset wood burning stove. A door to one side leads to another ground floor shower room; meaning this could be used as a ground floor bedroom if required. The shower room has been recently updated and comprises; double shower enclosure and vanity storage units with inset hand wash basin and concealed cistern WC. There is a heated towel rail, under floor heating and a window to the rear.

Dining Room..

This room has ample space for a large table and features a wealth of exposed timbers, open brick fireplace and windows to the front and rear. At the far end an opening leads through to the central hallway where stairs rise to the first floor, there are useful storage cupboards and doors open to the sitting room and study.

Sitting Room ..

A generous triple aspect room with views of the garden and courtyard, a focal exposed brick fireplace with inset wood burning stove and attractive hand carved exposed woodwork. A separate staircase to one side leads to the first floor.

Study

Giving ample space for two desks this room is very versatile and features two windows to the front, a window to the side and the characterful exposed brick chimney breast.

First Floor..

Three staircases lead up to two first floor landings, the first gives access to two bedrooms and a bathroom, whilst the second leads to three bedrooms and the family bathroom.

Bedrooms One And Two..

These are two spacious double rooms, interconnecting and featuring a wealth of exposed timbers and original mullions.

Additional Bedrooms..

Bedrooms three and four are two comfortable double bedrooms with double and triple aspect windows. Both have fitted wardrobes and one benefits from an ensuite shower room. The fifth bedroom is a smaller room currently used as a students study.

Family Bathrooms..

Each landing gives access to a separate and well-appointed bathroom. Serving bedrooms two and five, this characterful bathroom features exposed timbers, a former mullion window and a deep spa style corner bath, WC and pedestal hand wash basin. Whilst bedrooms one and three have use of a five piece bathroom comprising; shower enclosure, pedestal hand wash basin, roll top claw and ball bath, low level WC and bidet.

Outside..

The property is set well back from the road and accessed via wide electric gates. To the front there is an extensive shingled parking and turning area which in turn gives vehicular access to the cart lodge and via five bar gates; to the wash down area, front paddock, stable yard and gardens.

To the rear, formal gardens wrap around the south west wing of the property and are divided into several different areas. These commence with a beautiful and well-stocked sun terrace enclosed by a low flint wall. An opening leads through to the formal lawns, with paddocks beyond and to one side lies a mature vegetable garden. There are a selection of well-established shrub beds, an impressive weeping willow and natural pond with surrounding decking.
In total the grounds extend to just over 5.5 acres, 4 acres of this is laid to paddocks with automatic drinkers, all enclosed by post and rail fencing. To the side of the property is a practical utility space with wash down area, hardstanding and enclosed chicken run.

Outbuildings..

The property incorporates an impressive selection of traditional outbuildings including; three stables, piggeries, former dairy, cart lodge and run-in pole barn.

Commercial Premises..

Situated to the front of the property, this is a spacious unit benefitting from its own underfloor heating system driven by a ground source heat pump. There are four separate rooms currently laid out as a display area, WC changing room and consultation room.

Other information..
We understand mains water and electric are connected whilst heating is provided by an oil fired boiler and there is a private drainage system.


Property Location

Property Marketed by Palmer & Partners



Phone:
Address: 43 Crouch Street, Colchester

Inquire about this property

By sending, you agree to Mylisting365's Terms of Use & Privacy Policy.

Similar Properties

For Sale Colchester
For Sale CO6
Colchester new homes for sale
CO6 new homes for sale
Flats for sale Colchester
Flats To Rent Colchester
Flats for sale CO6
Flats to Rent CO6
Colchester estate agents
CO6 estate agents