3 Bedrooms for sale in Pymers Mead, Dulwich, London SE21 | £ 835,000

Overview

Price: £ 835,000
Contract type: For Sale
Type:
County: London
Town: London
Postcode: SE21
Address: Pymers Mead, Dulwich, London SE21
Bathrooms: 2
Bedrooms: 3

Property Description

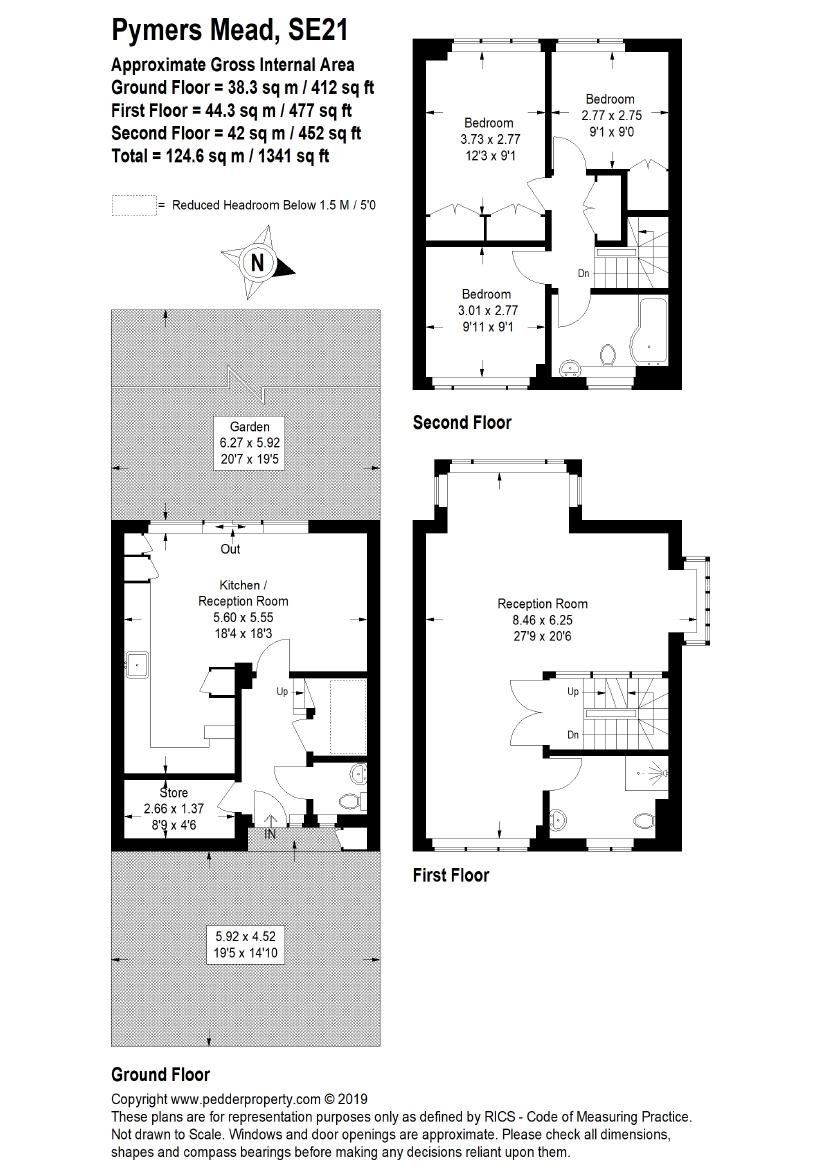
A lovely 3 storey end of terrace townhouse for sale situated in this highly desirable residential development set back from Croxted Road in Dulwich. The property has recently been remodelled, upgraded and modernised to a high standard creating excellent living space and a stylish and very well presented interior. There are new double glazed windows throughout. The ground floor has a large open-plan kitchen/breakfast/family room with patio doors leading out to the garden. There is also a downstairs cloakroom and laundry/storage room. The 1st floor has an L shaped double reception room (potential to create bedroom 4) and a re-fitted shower room. The 2nd floor has 3 bedrooms and a re-fitted family bathroom. There is also a loft providing excellent storage. Externally to the front there is a drive providing off street parking and to the rear a secluded patio garden. Dulwich Village is close by with its excellent schools, popular parks, cafes and restaurants.Internal viewing advised. EPC E.


Property Location

Property Marketed by Pedder - Dulwich Village



Phone:
Address: 119 Dulwich Village, London

Inquire about this property

By sending, you agree to Mylisting365's Terms of Use & Privacy Policy.

Similar Properties

For Sale London
For Sale SE21
London new homes for sale
SE21 new homes for sale
Flats for sale London
Flats To Rent London
Flats for sale SE21
Flats to Rent SE21
London estate agents
SE21 estate agents