4 Bedrooms Semi-detached house for sale in Hallingbury Close, Little Hallingbury CM22 | £ 540,000

Overview

Price: £ 540,000
Contract type: For Sale
Type: Semi-detached house
County: Hertfordshire
Town: Bishop's Stortford
Postcode: CM22
Address: Hallingbury Close, Little Hallingbury CM22
Bathrooms: 0
Bedrooms: 4

Property Description



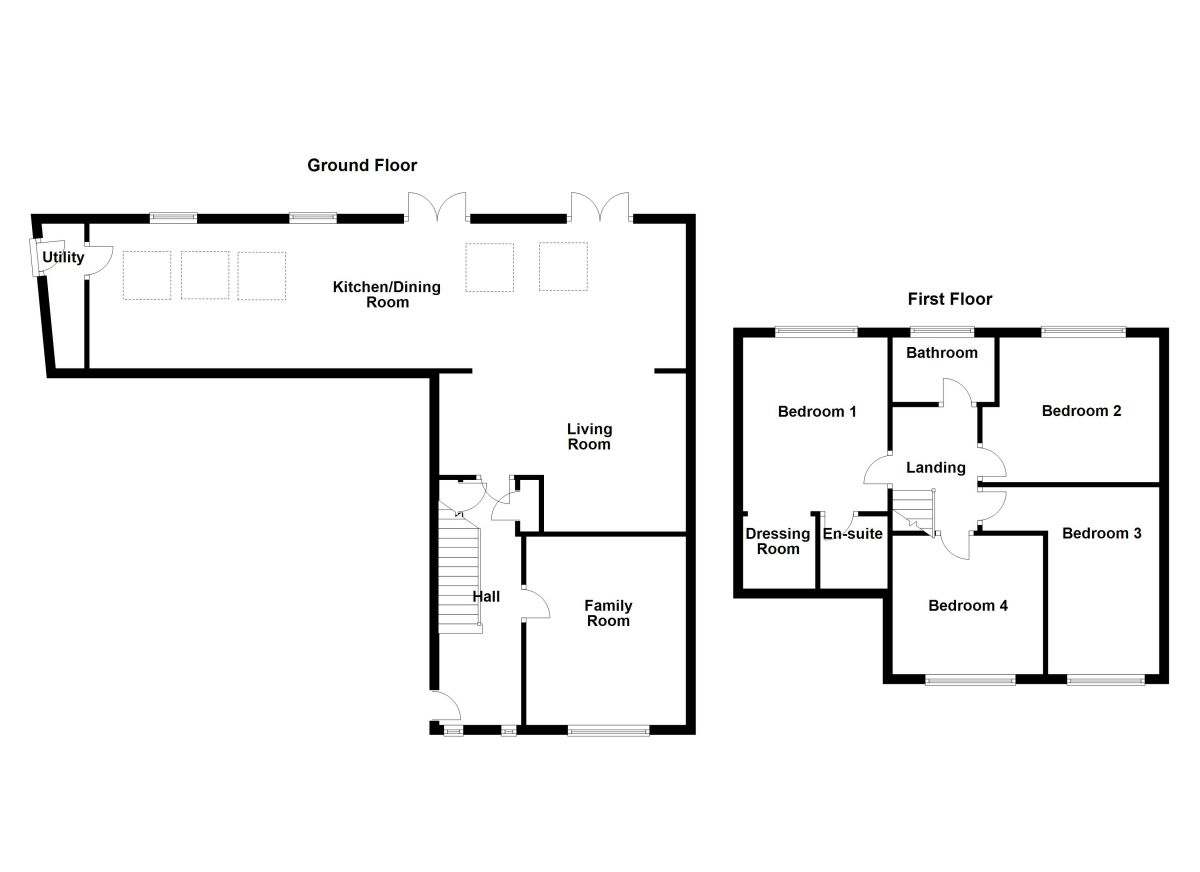
An exceptionally spacious four bedroom semi detached family home set in the village of Little Hallingbury. The house is surrounded by paddocks, open fields and farmland and has an amazingly large garden, predominantly laid to lawn with mature trees, offering a high degree of seclusion and privacy. The accommodation comprises entrance hallway, cloakroom, family room, amazing open plan kitchen/dining/livng room, Velux roof lights, double doors leading onto the garden and a rear hall utility. On the first floor the master bedroom has an en-suite shower room and a dressing room, three further good size bedrooms and a bathroom. The property enjoys a brick paved driveway leading to the garage and garden. It's location is easily accessible to both Bishop's Stortford, Sawbridgeworth and excellent local schooling. EPC Band C.

Entrance Hall

Cloakroom

Open Plan Living / Dining Room / Kitchen

Living Area (3.33m x 5.18m)

Kitchen / Dining Area (3.05m x 12.75m)

Rear Hall / Utility

Family Room / Reception Room 2 (3.66m x 3.91m)

First Floor Landing

Bedroom 1 (3.05m x 3.61m)

Dressing Room (1.52m x 1.52m)

En-Suite Shower Room (1.52m x 2.13m)

Bedroom 2 (2.44m x 3.94m)

Bedroom 3 (3.05m x 3.33m)

Bedroom 4 (2.74m x 2.74m)

Bathroom (1.52m x 2.13m)

Outside

Additional Information

Little Hallingbury is a small village located just outside Bishops Stortford which offers fast rail links to London Liverpool Street and close proximity to both M11 motorway and Stansted Airport. Bishops Stortford provides reputable primary and secondary schooling, a variety of shops, regular market days, leisure facilities and a good choice of cafes, bars and restaurants. Little Hallingbury itself has a primary school, pub, hotel/restaurant and a village hall.

Important note to purchasers:

We endeavour to make our sales particulars accurate and reliable, however, they do not constitute or form part of an offer or any contract and none is to be relied upon as statements of representation or fact. Any services, systems and appliances listed in this specification have not been tested by us and no guarantee as to their operating ability or efficiency is given. All measurements have been taken as a guide to prospective buyers only, and are not precise. Please be advised that some of the particulars may be awaiting vendor approval. If you require clarification or further information on any points, please contact us, especially if you are traveling some distance to view. Fixtures and fittings other than those mentioned are to be agreed with the seller.

/4


Property Location

Property Marketed by Intercounty - Bishops Stortford



Phone:
Address: 21 North Street, Bishop's Stortford

Inquire about this property

By sending, you agree to Mylisting365's Terms of Use & Privacy Policy.

Similar Properties

Semi-detached house For Sale Bishop's Stortford
Semi-detached house For Sale CM22
Bishop's Stortford new homes for sale
CM22 new homes for sale
Flats for sale Bishop's Stortford
Flats To Rent Bishop's Stortford
Flats for sale CM22
Flats to Rent CM22
Bishop's Stortford estate agents
CM22 estate agents