3 Bedrooms Semi-detached house for sale in Wembley Gardens, Bramcote, Nottingham NG9 | £ 189,000

Overview

Price: £ 189,000
Contract type: For Sale
Type: Semi-detached house
County: Nottingham
Town: Nottingham
Postcode: NG9
Address: Wembley Gardens, Bramcote, Nottingham NG9
Bathrooms: 1
Bedrooms: 3

Property Description



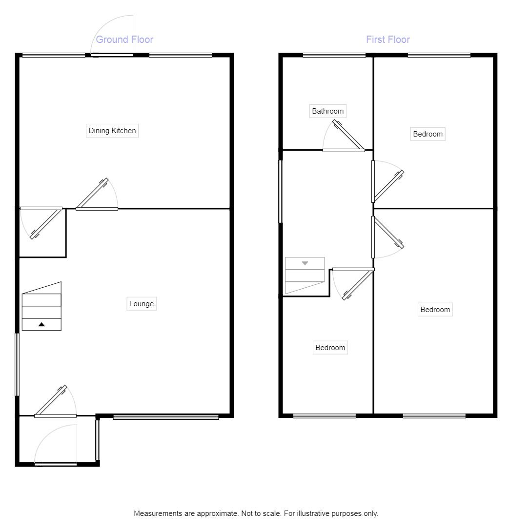
A three bedroom semi detached family house situated in a sought after cul de sac in Bramcote. This location is popular for schools, public transport, access to Bramcote Lane shops and cafes and access to the disused Nottingham Canal Nature Reserve. The property comprises of in brief: Entrance porch, lounge and a dining kitchen on the ground floor. To the first floor there are three bedrooms and a family bathroom. The property also benefits from a gas central heating system and is majority double glazed ( except front entrance door ). Outside the property has a front garden being majority laid to lawn, driveway with space for car standing, detached garage and a rear garden with seating areas and a lawned area. This property is in high demand we therefore strongly recommend an early viewing. EPC Rating C

Directions

From our Wollaton office turn right onto Bramcote Lane and then turn right onto Rivergreen Crescent. Take your first left onto Deddington Lane and then left onto Chesham Drive. Wembley Gardens is an eventual right hand turn and follow the road round into the cul de sac where the property is located on your left hand side.

Entrance Porch

Accessed via the front entrance door having double glazed window to the side elevation and a door leading to:

Lounge (4.23m x 4.40m)

Having a feature wall mounted electric fire, stairs to the first floor, radiator and a double glazed window to the front elevation.

Dining Kitchen (3.16m x 4.47m)

Comprising a range of wall and base units incorporating rolled edge work surfaces with an inset sink having a mixer tap. Under stairs storage cupboard, laminate flooring, radiator and double glazed windows and double glazed door leading into the rear garden.

Landing

Having access to the roof space and a double glazed window to the side elevation. Doors to:

Bedroom (2.52m x 4.21m)

Having fitted wardrobes, radiator and a double glazed window to the front elevation.

Bedroom (2nd) (2.52m x 2.78m)

Having a radiator and a double glazed window to the rear elevation.

Bedroom (3rd) (1.81m x 3.31m)

Having an over stairs storage cupboard, radiator and a double glazed window to the front elevation.

Family Bathroom (1.87m x 1.93m)

Comprising a panelled bath with mixer tap including shower attachment and shower over pedestal wash hand basin and a close coupled WC. Marble effect tiling to the walls and floor, heated towel rail and a double glazed window to the rear elevation.

Outside

The property is approached via a driveway with space for cars standing leading to a detached garage to the rear with an up and over door. Pathways leading to the front entrance door, front garden and rear garden. The front garden is majority laid to lawn with plant, shrub and tree borders. To the rear of the property there are seating areas with a lawned area having plant and shrub borders.

Important note to purchasers:

We endeavour to make our sales particulars accurate and reliable, however, they do not constitute or form part of an offer or any contract and none is to be relied upon as statements of representation or fact. Any services, systems and appliances listed in this specification have not been tested by us and no guarantee as to their operating ability or efficiency is given. All measurements have been taken as a guide to prospective buyers only, and are not precise. Please be advised that some of the particulars may be awaiting vendor approval. If you require clarification or further information on any points, please contact us, especially if you are traveling some distance to view. Fixtures and fittings other than those mentioned are to be agreed with the seller.

/3


Property Location

Property Marketed by Your Move - SDS Wollaton



Phone:
Address: 158a Bramcote Lane, Wollaton

Inquire about this property

By sending, you agree to Mylisting365's Terms of Use & Privacy Policy.

Similar Properties

Semi-detached house For Sale Nottingham
Semi-detached house For Sale NG9
Nottingham new homes for sale
NG9 new homes for sale
Flats for sale Nottingham
Flats To Rent Nottingham
Flats for sale NG9
Flats to Rent NG9
Nottingham estate agents
NG9 estate agents