0 Bedrooms Studio to rent in Fabrick Square, Lombard Street, Digbeth B12 | £ 150

Overview

Price: £ 150
Contract type: To Rent
Type: Studio
County: West Midlands
Town: Birmingham
Postcode: B12
Address: Fabrick Square, Lombard Street, Digbeth B12
Bathrooms: 1
Bedrooms: 0

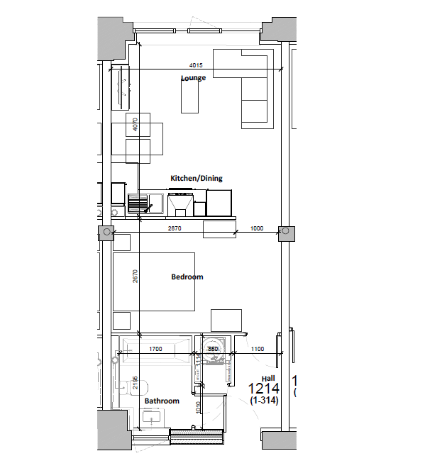
Property Description

This design led scheme of 313 beautifully appointed apartments are centred around a new square within Digbeth. Named after the original use as a curtain factory, this is Fabrick Square!

The oldest part of Birmingham, Digbeth is a historic area with a fascinating past. Today, buildings survive from as far back as the 1300's. The hard work and creativity that once defined the area remains - Digbeth is the leading destination for creative businesses and independent shops outside of London.

This pioneering residential development will provide a friendly and community-driven space. Fabrick Square is ideally situated a stones-throw from the Bullring Shopping Centre, Universities and train stations.

With clean contemporary lines and stylish fittings, all interiors are modern and finished to the same exacting standards.

Apartment specifications provide superb, generously proportioned open plan designs including:

* Integrated kitchen appliances to include oven, hob, extractor and fridge/freezer. Washer/dryer to be provided in hall cupboard. Under cupboard LED lighting to wall units.
* Full height wall tiling around bath/shower with coloured glass splash back to washbasin.
* Ladder style polished chrome or equivalent heated towel rail.
* Brushed stainless steel and chrome ironmongery throughout.
* Hardwood veneered, solid core entrance door with spy hole.
* Hardwood veneered, or equivalent, internal doors throughout.
* Audio intercom system.
* Low energy LED down lighters to kitchen area.


Property Location

Property Marketed by Martin & Co Birmingham City



Phone:
Address: 32 Carver Street, Birmingham

Inquire about this property

By sending, you agree to Mylisting365's Terms of Use & Privacy Policy.

Similar Properties

Studio To Rent Birmingham
Studio To Rent B12
Birmingham new homes for sale
B12 new homes for sale
Flats for sale Birmingham
Flats To Rent Birmingham
Flats for sale B12
Flats to Rent B12
Birmingham estate agents
B12 estate agents