0 Bedrooms Terraced house for sale in Allington Circle, Kingsmead, Milton Keynes, Buckinghamshire MK4 | £ 310,000

Overview

Price: £ 310,000
Contract type: For Sale
Type: Terraced house
County: Buckinghamshire
Town: Milton Keynes
Postcode: MK4
Address: Allington Circle, Kingsmead, Milton Keynes, Buckinghamshire MK4
Bathrooms: 0
Bedrooms: 0

Property Description

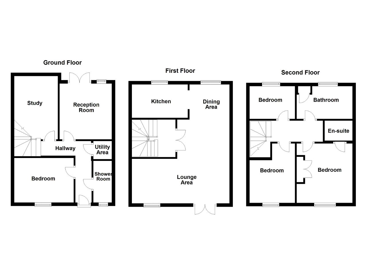
King Estate Agents are delighted to bring to the market this versatile four/five bedroom town house situated in the sought after location of Kingsmead overlooking park area. The property benefits from recently re-fitted kitchen and bathrooms to a high specification. The property in brief comprises of Entrance Hall, Shower Room, Bedroom, Study and a further reception room on the ground floor. The first floor has an open plan lounge/diner as well as the kitchen. The second floor comprises of Master Bedroom with En-Suite, Family Bathroom and two further bedrooms.



Property Location

Property Marketed by King Estate Agents



Phone:
Address: 11 Furzton Lake, Shirwell Crescent, Furzton

Inquire about this property

By sending, you agree to Mylisting365's Terms of Use & Privacy Policy.

Similar Properties

Terraced house For Sale Milton Keynes
Terraced house For Sale MK4
Milton Keynes new homes for sale
MK4 new homes for sale
Flats for sale Milton Keynes
Flats To Rent Milton Keynes
Flats for sale MK4
Flats to Rent MK4
Milton Keynes estate agents
MK4 estate agents