3 Bedrooms Terraced house for sale in Ashfield Street, Normanton WF6 | £ 140,000

Overview

Price: £ 140,000
Contract type: For Sale
Type: Terraced house
County: West Yorkshire
Town: Normanton
Postcode: WF6
Address: Ashfield Street, Normanton WF6
Bathrooms: 2
Bedrooms: 3

Property Description



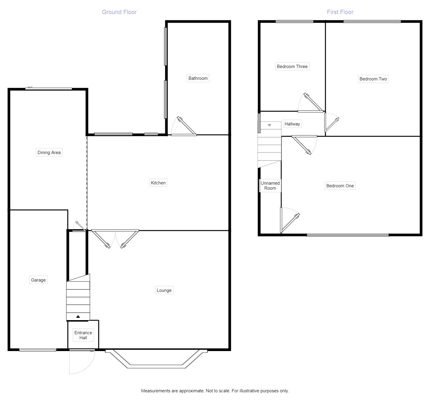
***offers in the region of £140,000*** Well presented throughout this three bedroom semi detached home offers ample off street parking with block paving to the front and a single garage to the side of the property. To the rear is a spacious low maintenance rear yard. Internally this property briefly comprises of; entrance hall, lounge, kitchen, dining room, bathroom, three bedrooms and an en-suite toilet. Viewing Essential! EPC grade E.

Entrance Hall

Door to the front of the property with stairs to the first floor and access to the lounge.

Lounge (4.04m x 4.44m)

To the front of the property is a double glazed uPVC window letting plenty of light through the property. Finished off with a gas central heating radiator and gas feature fire.

Dining Area (2.79m x 2.67m)

This dining area is just off the kitchen and offers double glazed patio doors leading to the rear garden. Boasting a gas central heating radiator.

Kitchen (3.25m x 5.05m)

This fitted kitchen comprises of wall and base units with sink and drainer, gas oven and hob with cooker hood over. Benefiting from gas central heating radiator and two uPVC double windows to the rear of the property.

Bathroom

Four pieced bathroom suite benefiting from a spacious corner shower, bath with mixer taps, wash hand basin and low level WC. Benefiting from not one but two heated towel radiators, partly tiled with a uPVC double glazed window to the rear.

Bedroom 1 (3.35m x 4.04m)

Bedroom with uPVC double glazed window and gas central heating radiator. Also boasting an en-suite toilet above the staircase.

Bedroom 2 (3.02m x 3.30m)

Bedroom with uPVC double glazed window and gas central heating radiator.

Bedroom 3 (2.39m x 2.01m)

Bedroom with uPVC double glazed window and gas central heating radiator.

Garage

Single garage to the side of the property with light and power.

Outside

Low maintenance gardens to the front and rear offering plenty of parking as well as a spacious sun trap to the rear.

Important note to purchasers:

We endeavour to make our sales particulars accurate and reliable, however, they do not constitute or form part of an offer or any contract and none is to be relied upon as statements of representation or fact. Any services, systems and appliances listed in this specification have not been tested by us and no guarantee as to their operating ability or efficiency is given. All measurements have been taken as a guide to prospective buyers only, and are not precise. Please be advised that some of the particulars may be awaiting vendor approval. If you require clarification or further information on any points, please contact us, especially if you are traveling some distance to view. Fixtures and fittings other than those mentioned are to be agreed with the seller.

/8


Property Location

Property Marketed by Reeds Rains



Phone:
Address: 4 Bull Ring, Wakefield

Inquire about this property

By sending, you agree to Mylisting365's Terms of Use & Privacy Policy.

Similar Properties

Terraced house For Sale Normanton
Terraced house For Sale WF6
Normanton new homes for sale
WF6 new homes for sale
Flats for sale Normanton
Flats To Rent Normanton
Flats for sale WF6
Flats to Rent WF6
Normanton estate agents
WF6 estate agents