3 Bedrooms Terraced house for sale in Broadbridge Heath, Horsham, West Sussex RH12 | £ 290,000

Overview

Price: £ 290,000
Contract type: For Sale
Type: Terraced house
County: West Sussex
Town: Horsham
Postcode: RH12
Address: Broadbridge Heath, Horsham, West Sussex RH12
Bathrooms: 1
Bedrooms: 3

Property Description

Offered to the market with a guide price of £290,000 to £305,000.

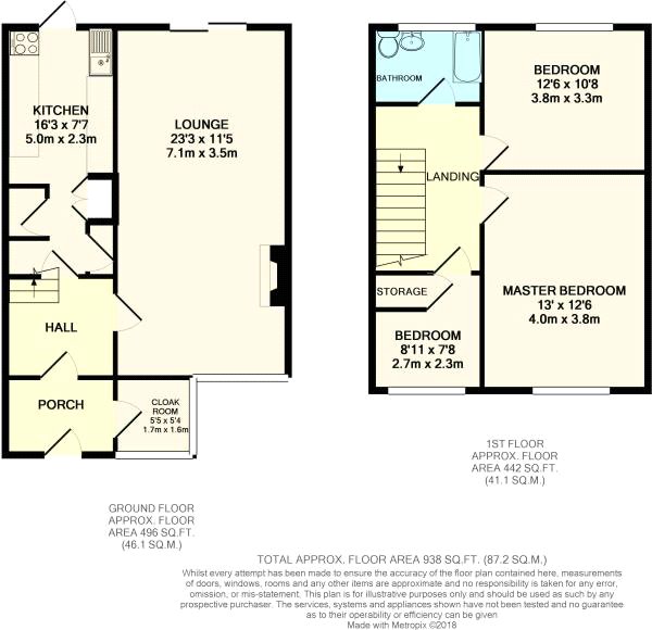
Mayhew Estates are delighted to offer to the market this three bedroom mid-terrace family home, the property offers plenty of accommodation throughout with large living area and good sized bedrooms. The property lends itself nicely to first or second time purchasers and is located in the desirable village of Broadbridge Heath.
The property comprises of a large lounge/diner, the living area is naturally very light and has space for sofas and a 6 seater dining room table. The kitchen offers plenty of surface and storage space and is of neutral decor. The ground floor accommodation is finished off with a downstairs cloakroom.
On the first floor there are three bedrooms, the master is a generous double with built in storage, bedroom two is also a generous double and bedroom three is a large single. The bathroom is a well finished suite with bath and overhead shower, toilet and basin.

Outside:
The rear garden has been landscaped by its current vendor, it offers herbaceous borders and easy to maintain lawn, it is a great space to enjoy all year round. There is an easy to maintain front courtyard and garage en-bloc.



Property Location

Property Marketed by Mayhew Estates



Phone:
Address: 4 High Street, Horley, Gatwick

Inquire about this property

By sending, you agree to Mylisting365's Terms of Use & Privacy Policy.

Similar Properties

Terraced house For Sale Horsham
Terraced house For Sale RH12
Horsham new homes for sale
RH12 new homes for sale
Flats for sale Horsham
Flats To Rent Horsham
Flats for sale RH12
Flats to Rent RH12
Horsham estate agents
RH12 estate agents