3 Bedrooms Terraced house for sale in Emerald Street, Roath, Cardiff CF24 | £ 185,000

Overview

Price: £ 185,000
Contract type: For Sale
Type: Terraced house
County: Cardiff
Town: Cardiff
Postcode: CF24
Address: Emerald Street, Roath, Cardiff CF24
Bathrooms: 2
Bedrooms: 3

Property Description



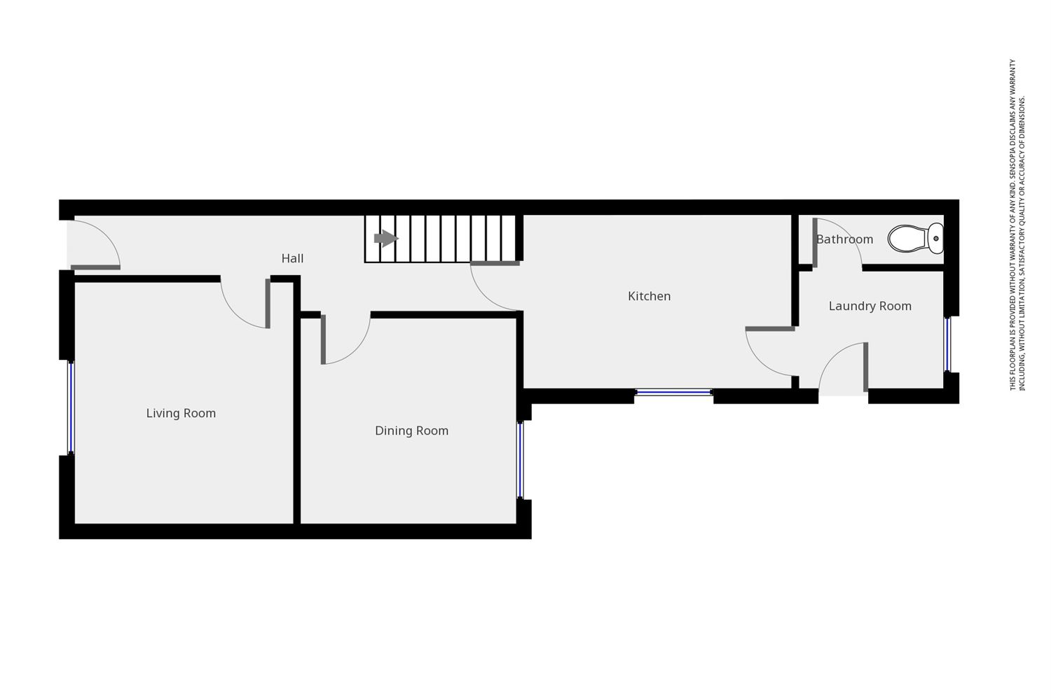
Entrance Hall



Wood panelled front door, laminate floor covering, central heating radiator, stairs to first floor.

Lounge (3.88m x 3.52m)



Period feature fireplace, cupboards to chimney recess, central heating radiator, laminate flooring, double glazed window to front elevation, period coved finish to ceiling.

Dining Room (3.50m x 3.30m)



Laminate floor covering, central heating radiator, double glazed window to rear.

Kitchen (4.35m x 2.70m)



Fitted modern base and wall units, roll top preparation surfaces, splash-back tiling, single drainer stainless one and half bowl sink with mixer tap, space for washing machine and fridge freezer, built-in four ring hob, built-in oven, tiled floor covering, understairs storage cupboard, central heating radiator, double glazed window to side.

Utility Room (1.90m x 1.80m)



Double glazed door to rear garden, window to rear.

W.C.



Comprising low level w.C.

First Floor (Landing)

Bedroom 1 (5.08m x 3.58m)



Two double glazed windows to front, two central heating radiators.

Bedroom 2 (3.55m x 3.33m)



Double glazed window to rear, central heating radiator, cupboard housing boiler.

Bedroom 3 (4.98m (max) x 2.77m)



Double glazed window to side, central heating radiator.

Shower Room



Comprising shower cubicle with overhead shower, extractor fan, low level w.C., pedestal wash hand basin, skylight window.

Outside



Enclosed with stone walls, timber deck seating area the remainder mainly laid to grass.


Property Location

Property Marketed by CPS Homes



Phone:
Address: 66 Albany Road, Cardiff

Inquire about this property

By sending, you agree to Mylisting365's Terms of Use & Privacy Policy.

Similar Properties

Terraced house For Sale Cardiff
Terraced house For Sale CF24
Cardiff new homes for sale
CF24 new homes for sale
Flats for sale Cardiff
Flats To Rent Cardiff
Flats for sale CF24
Flats to Rent CF24
Cardiff estate agents
CF24 estate agents