3 Bedrooms Terraced house for sale in High Street East, Anstruther KY10 | £ 230,000

Overview

Price: £ 230,000
Contract type: For Sale
Type: Terraced house
County: Fife
Town: Anstruther
Postcode: KY10
Address: High Street East, Anstruther KY10
Bathrooms: 3
Bedrooms: 3

Property Description

Fife Properties are delighted to offer a bespoke development finished to a high standard with riverside/sea views within the charming fishing village of Anstruther.
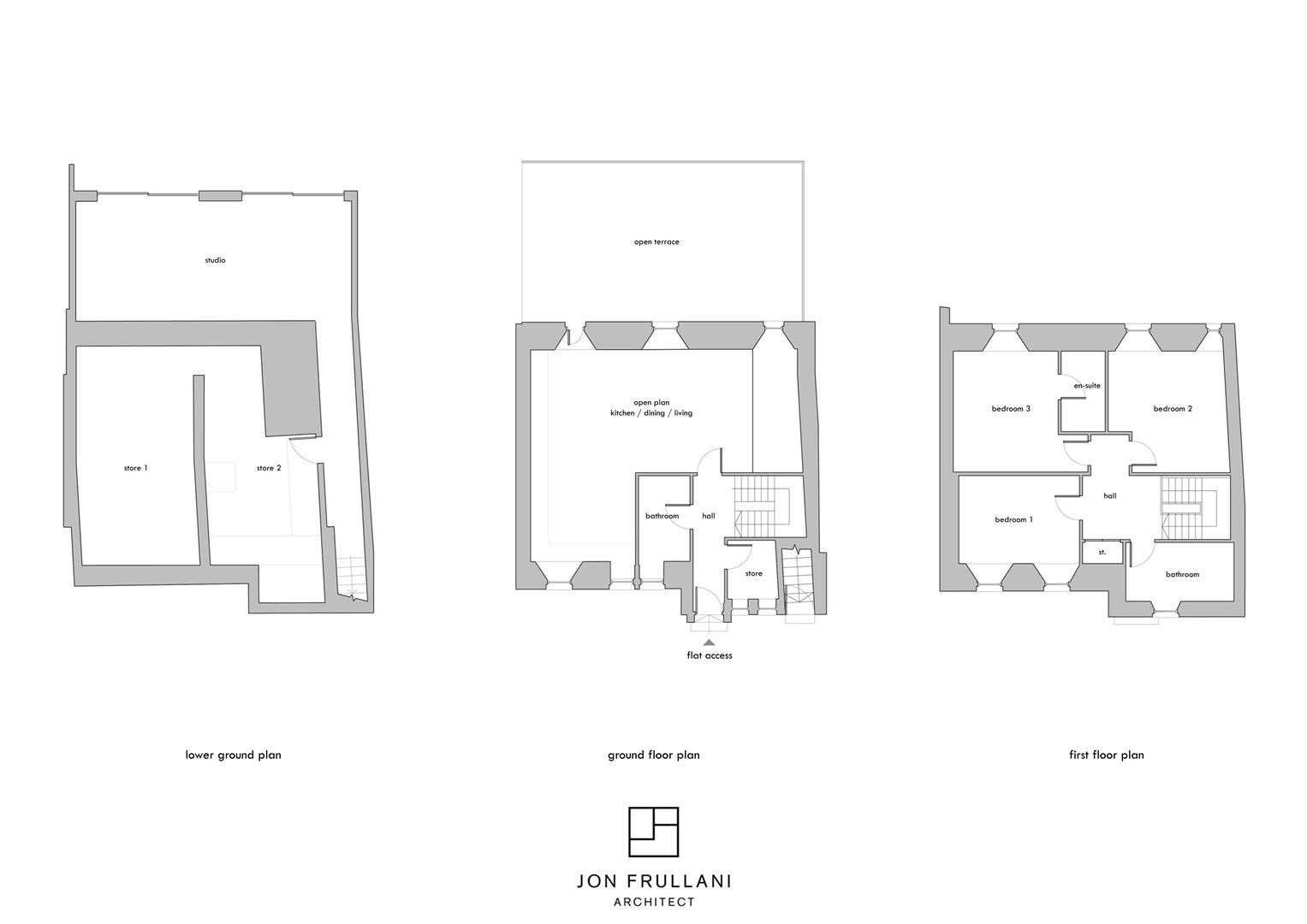
No. 11 is a 3 Bedroom Mid Terraced Villa and is accessed via the ground floor and comprises: Hall, spacious open plan kitchen/living/dining room leading to a roof terrace providing a seating area with riverside/sea views, 3 bedrooms (1 with en-suite shower room) and 2 bathrooms. Gas central heating. Double glazing. Store. Allocated parking bay. A doorway to the side leads to a lower studio room leading to a lower garden and a store room.

Travel Directions

Please contact the selling agent direct.

Location

Anstruther is a charming fishing village in the East Neuk of Fife. Located 9 miles South East of St Andrews, it is the largest in a string of delightful, old-fashioned fishing villages along the stretch of the Fife coast known as the East Neuk. Its main industry is tourism, fishing and farming. Recreationally there is a harbour, golf course, bowling green, tennis courts and the Fife coastal path for walking and running as well as excellent B roads for cycling and tracks for mountain biking. Education is provided by the local primary school and Waid Academy which is one of the top performing secondary schools in Fife. All in all, making this one of the most desirable places to live.

Description

Room dimensions

Lower Ground Floor

Studio - 9.40m x 4.10m

Store 1 - 7.50m x 4.00m

Store 2 - 8.70m x 3.40m

Ground Floor

Kitchen / Living / Dining room - 7.60m x 7.20m

Bathroom - 1.70m x 3.50m

Store - 1.70m x 2.00m

First Floor

Bedroom 1 - 4.10m x 3.00m

Bedroom 2 - 4.10m x 3.90m

Bedroom 3 - 4.60m x 4.10m
En-suite - 2.70m x 1.5m

Bathroom - 3.70m x 2.00m

Agents Note

The company employs a team of craftsmen whose attention to detail and finish are of the highest quality making this an ideal family or holiday home.

Please note that all room sizes are approximate to widest points.

Further details, terms and anticipated timeframes for completion can be obtained by contacting the local office.


Property Location

Property Marketed by Fife Properties Sales & Lettings



Phone:
Address: 22 North Street, Glenrothes

Inquire about this property

By sending, you agree to Mylisting365's Terms of Use & Privacy Policy.

Similar Properties

Terraced house For Sale Anstruther
Terraced house For Sale KY10
Anstruther new homes for sale
KY10 new homes for sale
Flats for sale Anstruther
Flats To Rent Anstruther
Flats for sale KY10
Flats to Rent KY10
Anstruther estate agents
KY10 estate agents