4 Bedrooms Terraced house for sale in Hockliffe Road, Leighton Buzzard LU7 | £ 325,000

Overview

Price: £ 325,000
Contract type: For Sale
Type: Terraced house
County: Bedfordshire
Town: Leighton Buzzard
Postcode: LU7
Address: Hockliffe Road, Leighton Buzzard LU7
Bathrooms: 2
Bedrooms: 4

Property Description

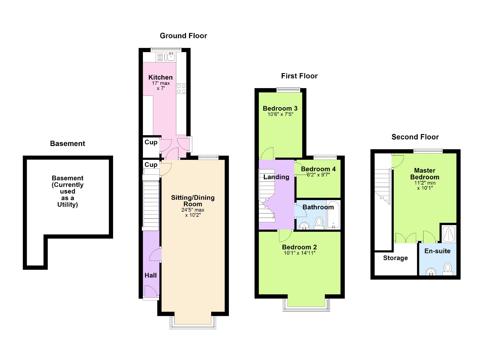
** town centre location ** bay fronted semi-detached **four bedrooms ** Character 4 bedroom home situated just a short walk from the high street of Leighton Buzzard. 24'0 Sitting/Dining Room, bay windows to both floors, The property is entered via a storm porch with quarry tiled flooring, that leads into the entrance hall. The reception room is over 24'0 in length and is dual aspect, with a modern fitted fitted kitchen, giving access to the rear garden. The basement is currently being used as a utility room, which has plumbing for a washing machine and is vented for a tumble dryer (Former planning permission granted for a low level W.C). There are 3 bedrooms to the first floor with a 14'0 second bedroom and a three piece family bathroom, To the second floor there is a 11'2 master bedroom with an en-suite and good sized storage/wardrobe area. The heating is by way of gas to radiators. The property has a generous fully enclosed garden to the rear mainly laid to lawn with a patio area. Briefly comprises:

Accommodation: Entrance Hall, Sitting/Dining Room, Kitchen, utility room 4 Bedrooms, En-suite, Family Bathroom.
Outside: Good Sized Rear Garden.

EPC rating D

Whilst we aim to make our details accurate and reliable, if there is of any point of particular interest to you, please contact the office. The apparatus, equipment, fittings and services have not been checked & therefore it is in the purchasers interest to establish the working condition of any appliances included. Personal items such as furnishings which maybe shown in photographs are not included in the asking price. No survey has been carried out by M & M Properties. Measurements have a tolerance of +/- 3''. Please note that this floor plan has not been drawn to scale and is for room layout purposes only. It does not constitute or form part of a contract. Doors maybe hung in the opposite direction.


Property Location

Property Marketed by M&M Properties



Phone:
Address: 27-29 Hockliffe Street, Leighton Buzzard

Inquire about this property

By sending, you agree to Mylisting365's Terms of Use & Privacy Policy.

Similar Properties

Terraced house For Sale Leighton Buzzard
Terraced house For Sale LU7
Leighton Buzzard new homes for sale
LU7 new homes for sale
Flats for sale Leighton Buzzard
Flats To Rent Leighton Buzzard
Flats for sale LU7
Flats to Rent LU7
Leighton Buzzard estate agents
LU7 estate agents