5 Bedrooms Terraced house for sale in Langton Street, Salford M6 | £ 245,000

Overview

Price: £ 245,000
Contract type: For Sale
Type: Terraced house
County: Greater Manchester
Town: Salford
Postcode: M6
Address: Langton Street, Salford M6
Bathrooms: 2
Bedrooms: 5

Property Description

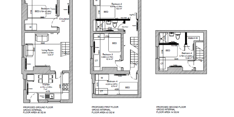
Hallway
Door leading to stairs, Radiator.

Bedroom 1 (12'2" (3.71m) Approx x 9'8" (2.95m) Approx)
Double glazed window to front, radiator, double bed, wardrobe, desk and chair.

Lounge (11'7" (3.53m) Approx x 12'4" (3.76m) Approx)
Door leading to lounge, sofa, coffee table, radiator TV wall mounted.

Kitchen/Diner (13'8" (4.17m) Approx x 9'8" (2.95m) Approx)
Double glazed window to rear, entrance door to rear, radiator, high gloss base and eye level units, tiled splash backs, stainless steel sink unit, mixer taps, gas hob, electric fan oven, extractor hood over, fridge freezer, washer, dryer. Ceramic tiled flooring. Dining table and chairs.

Bedroom 2 (14'6" (4.42m) Approx x 12'4" (3.76m) Approx)
Double glazed window to front, radiator, double bed, wardrobe, desk and chair.

Bathroom
Fully tiled walls, ceramic tiled flooring, low level WC, wash hand basin, shower with glass screen, heated towel rail.

Bedroom 3 (12'1" (3.68m) Approx x 9'0" (2.74m) Approx)
Double glazed window to rear, radiator, double bed, wardrobe, desk and chair.

Bedroom 4 (13'10" (4.22m) Approx x 6'9" (2.06m) Approx)
Double glazed window to rear, double bed, radiator, wardrobe, desk and chair.

Bedroom 5/en-suite ( 12'5" (3.78m) Approx x 11'4" (3.45m) Approx)
Double glazed window to side, radiator, double bed, walk in wardrobe, desk and chair.
Shower with glass screen, wash hand basin, low level WC, radiator, ceramic tiled flooring and walls.



Property Location

Property Marketed by Mistoria Estate Agency



Phone:
Address: Mistoria House, 10 Broughton Road, Salford

Inquire about this property

By sending, you agree to Mylisting365's Terms of Use & Privacy Policy.

Similar Properties

Terraced house For Sale Salford
Terraced house For Sale M6
Salford new homes for sale
M6 new homes for sale
Flats for sale Salford
Flats To Rent Salford
Flats for sale M6
Flats to Rent M6
Salford estate agents
M6 estate agents